Description
Small House Plans 6×7 Meter 20x23Feet Gable Roof
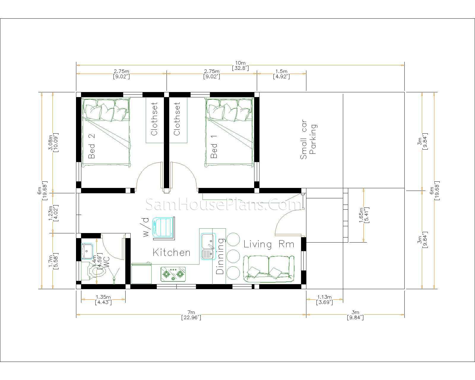
Small House Plans 6×7 Ground Floor Plans Has:
Firstly, the Parking is at the left side of the house it is available for 1 car parking. A nice Terrace entrance in front of the house size 1.2×1.7 meters. When we are going through a glass door, a small Living 2×3 Meter, small dinning table is very perfect for this house it is nice and modern. Brightly Kitchen, it is clean and beautiful 3.5×3 meter. A multi Bathroom size 1.4×1.4 meters. The washing machine is in the kitchen. Finally, Store size is up the washing machine. The most important of the house is an exit door from the Dining room to the back yard.
The Master Bedroom size is 3×2.75 meters with a queen size bed, Makeup desk and closet, and Bedroom 2 size 2.75×3.0 meters, both rooms have closet.
The Roof Tile:
Finally, The Gable roof type is made from Zine tile that cover above Gypsum board ceiling . It is make the house look simple and modern.

Exterior Small House Plans 6×7:
Similarly, to the roof border color we choose a bite dark and light color combination together with a big glass door and window to get the house look so beautiful and Modern house.

The House has:
-Car Parking and garden
-Living room,
-Dining room
-Kitchen
-2 Bedrooms, 1 bathrooms
-washing room
PLEASE MAKE SURE YOU HAVE CHECK THE FREE SAMPLE DOWNLOAD PLANS
Check the Plans for more detail:
Buy this house plan Small House Plans 6×7:
This is a PDF Plan available for Instant Download.
2-Bedrooms 1-Bath home with mini washer/dryer room.
Building size: 20 feet wide, 23 feet deep 6×7 Meters
Roof Type: Gable roof (zine, cement tile or other supported type)
Foundation: Concrete or other supported material
For the reverse plan, please see other Model.
PLANS INCLUDE:
Footing, Beam, Column Location plan
Exterior / Interior wall Dimension Plan
Roof Beam Plan
Roof Plan
Elevations plans
2 Cross Section plans
Ceiling Lighting location Plan
You are purchasing the PDF file for this plan. Print it out whenever you like, as many times as you like.
Plan prints to A4 paper.
CUSTOM PLANS:
Unfortunately I’m unable to do custom plans at this time.
DISCLAIMER:
These plans were produced by myself and were not prepared by nor checked by a licensed architect and/or engineer.
I do not represent nor imply myself to be a licensed architect and/or licensed engineer.
Enjoy these plans but use them at your own discretion.
Delivery Instant Download
Your files will be available to download once payment is confirmed. Here’s how.
I don’t accept returns, exchanges, or cancellations. But please contact me if you have any problems with your order.
Your could Reach Us: Personal FB:Â Sophoat Toch
Facebook Page: Sam Architect
Facebook Group:Â Home Design Idea
More Plans Download On Youtube:Â House Plans Channel
If you think this Plan is useful for you. Please like and share.
In link download -Ground floor, First floor, 3d photo -Sketchup file -Autocad file (Layout plan)
We give you all the files, so you can edited by your self or your Architect, Contractor.





Other House plan:
Modern Farmhouse Designs 12×8 Meters 40×26 Feet
Luxury House Plans 12×8 Meters 40×26 Feet 3 Beds
Small House Plans 5×7 Meters 2 Bedrooms
Small House Design Idea 4×9 Meters 36sq.m
House Design 11×6 Meters 36×20 Feet Terrace Roof
Best Small House Designs 9×6 Meter 30×20 Feet
1 Story Modern House 12×12 Meters 40×40 Feet
Modern Small House Design 7×7 Meter 23×23 Feet
Small House Design 7×7 Meter 23×23 Feet Gable Roof


















Reviews
There are no reviews yet.