Description
Best Small House Designs 9×6 Meter 30×20 Feet 2 Beds
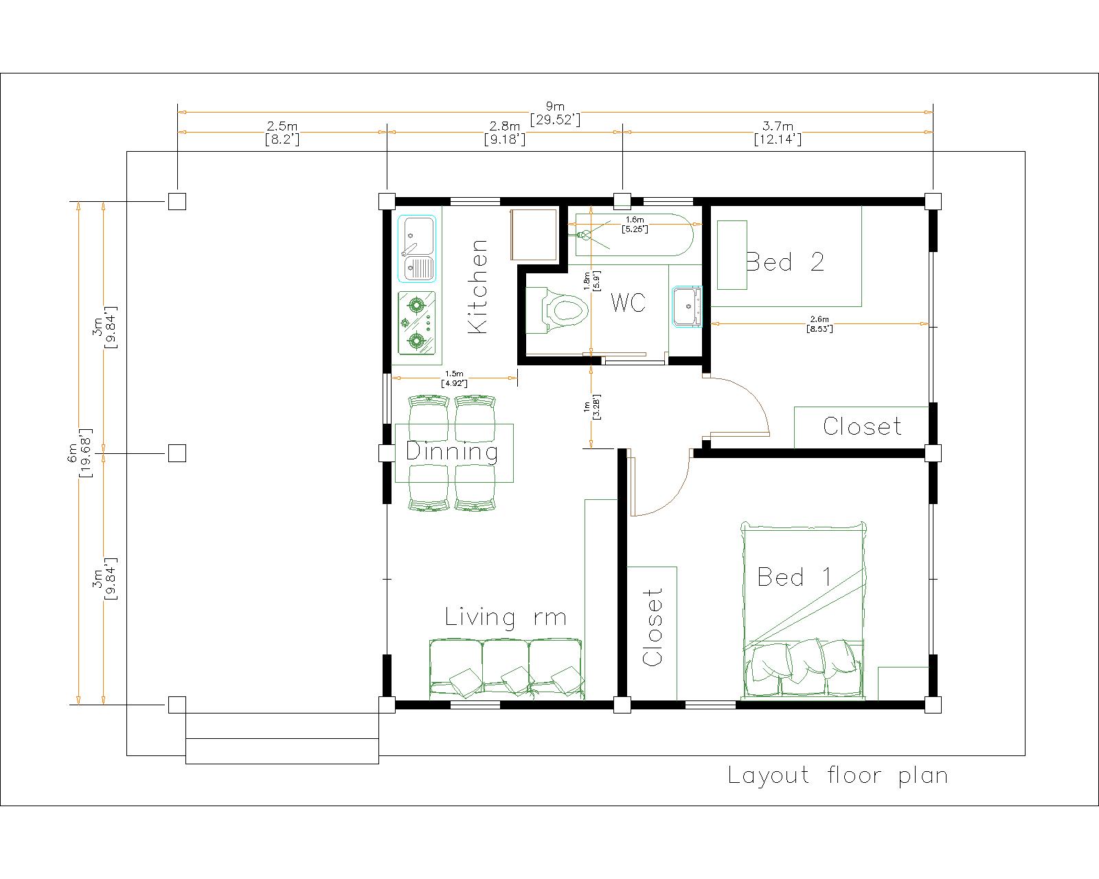
Best Small House Designs 9×6 Ground Floor Plans Has:
Firstly, Parking is out side of the house. A nice Terrace entrance in front of the house size 2.5×6.0 meters. When we are going from front door, a small Living with kitchen 2.8×4.0 meter is very perfect for maximum 4 people for this house it is nice and modern. Brightly Kitchen 1.5×2.0 meter, it is clean and beautiful. A multi Bathroom size 1.8 x 2.2 meters. The washing machine + storage is out side the house.
The Master Bedroom size is 3.0×3.7 meters, design like a hotel bedroom, it have Sliding glass Door with a queen size bed, Makeup desk and closet. Bedrooms 2 size 2.6×3.0 meter.
The Roof Tile:
Finally, The Terrace roof type is made from Zine tile that cover above Gypsum board ceiling . It is make the house look simple and modern.

Exterior Best Small House Designs 9×6:
Similarly, to the roof border color we choose a bite dark and light color combination together with a big glass door and window to get the house look so beautiful and Modern house.





House Short Description:
-Car Parking and garden
-Living room,
-Dining room
-Kitchen
-2 Bedrooms, 1 bathroom
-washing room
PLEASE MAKE SURE YOU HAVE CHECK the free sample plans
Check the Plans for more detail:
Buy this house plan: Small Home Floor Plans 9×6 Meter 30×20 Feet 2 Beds
-Layout Detailing floor plan, Elevation Plan with dimension.
-Sketchup file can used in Meter and Feet
-Autocad file (All Layout plan)
* Included files Autocad 2010 and Sketchup 2017
Your could Reach Us: Personal FB:Â Sophoat Toch
Facebook Page: Sam Architect
Facebook Group:Â Home Design Idea
More Plans Download On Youtube:Â House Plans Channel
If you think this Plan is useful for you. Please like and share.

Dining room and living room

Living room

Dining room and Tv

Kitchen room


Bathroom


Master bedroom


Kid bedroom

Other House plan:
Modern Farmhouse Designs 12×8 Meters 40×26 Feet
Luxury House Plans 12×8 Meters 40×26 Feet 3 Beds
House Plans 5×7 Meters 2 Bedrooms
Small House Design Idea 4×9 Meters 36sq.m
House Design 11×6 Meters 36×20 Feet Terrace Roof

Front elevation
Back elevation
Left elevation
Back elevation
Roof plan










samhouseplans –
Thank for best review