Description
Small Cottage Designs 9×6 Meter 30×20 Feet 2 Beds
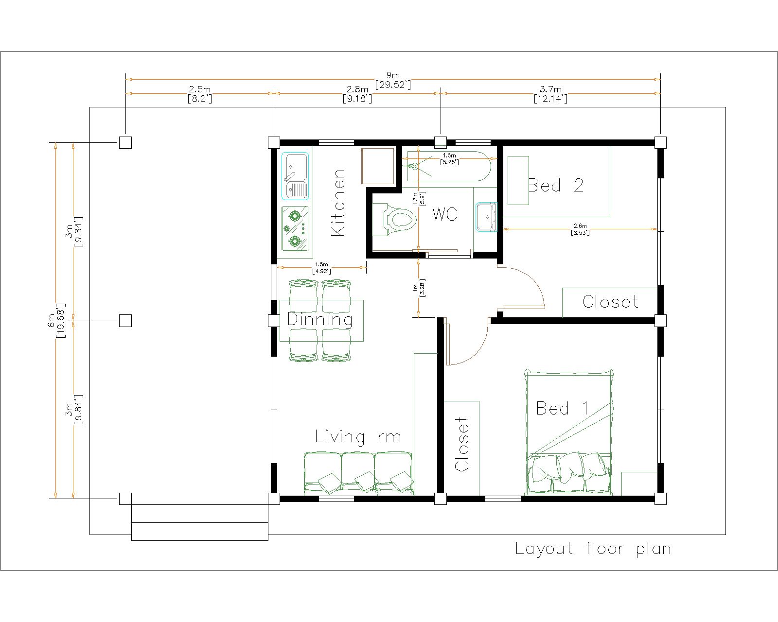
Small Cottage Designs 9×6 Ground Floor Plans Has:
Firstly, Parking is out side of the house. A nice Terrace entrance in front of the house size 2.5×6.0 meters. When we are going from front door, a small Living with kitchen 2.8×4.0 meter is very perfect for maximum 4 people for this house it is nice and modern. Brightly Kitchen 1.5×2.0 meter, it is clean and beautiful. A multi Bathroom size 1.8 x 2.2 meters. The washing machine + storage is out side the house.
The Master Bedroom size is 3.0×3.7 meters, design like a hotel bedroom, it have Sliding glass Door with a queen size bed, Makeup desk and closet. Bedrooms 2 size 2.6×3.0 meter.
The Roof Tile:
Finally, The Hip roof type is made from Zine tile that cover above Gypsum board ceiling . It is make the house look simple and modern.


Exterior Small Cottage Designs 9×6:
Similarly, to the roof border color we choose a bite dark and light color combination together with a big glass door and window to get the house look so beautiful and Modern house.





House Short Description:
-Car Parking and garden
-Living room,
-Dining room
-Kitchen
-2 Bedrooms, 1 bathroom
-washing room
PLEASE MAKE SURE YOU HAVE CHECK the free sample plans
Check the Plans for more detail:
Buy this house plan: Small Cottage Designs 9×6 Meter 30×20 Feet
-Layout Detailing floor plan, Elevation Plan with dimension.
-Sketchup file can used in Meter and Feet
-Autocad file (All Layout plan)
* Included files Autocad 2010 and Sketchup 2017
Your could Reach Us: Personal FB:Â Sophoat Toch
Facebook Page: Sam Architect
Facebook Group:Â Home Design Idea
More Plans Download On Youtube:Â House Plans Channel
If you think this Plan is useful for you. Please like and share.









Other House plan:
House Design 9×9 Meters 30×30 Feet Shed Roof
House Design Plans 13×9.5m Full Plan 2Beds
1 Story Modern House 12×12 Meters 40×40 Feet





3d House Drawing 13×7.5 Meter 43×25 Feet 3 Beds
One Level House Plans 12×12 Meters 40×40 Feet
Modern House Drawing 12×9 Meter 40×30 Feet
House Design 11×8 Meter 36×26 Feet 3 Beds
Small house design 7×7 Meters 24×24 Feet














samhouseplans –
Thank for review this house plan