Description
Home Plan 11x16m Meter 52×39 Feet 3 Bedrooms PDF Plan
Home Plan 11x16m Meter 52×39 Feet 3 Bedrooms Has:
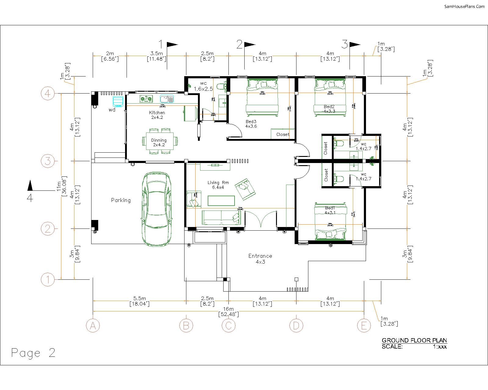
Ground floor, two cars Parking is at the left side of the house. A nice Terrace entrance in front of the house 3×4 meter. When we are going from front door, a Living 6.4×4 meter is very perfect for this house it is nice and modern. Brightly dining area 4.2×2 meter. Kitchen 2×4.2 meter, it is clean and beautiful. A multi Bathroom size 2.5×1.6 meter. The washing machine is out side the house 2×4 meter, Bedroom 1 size is 4×3.1 meter with bathroom 1.4×2.7 meter, Bedroom 2 size is 4×3.3 meter with bathroom 1.4×2.7 meter, and Bedroom 3 size is 4×3.6 meter.
The House has:
-Car Parking and garden
-Living room,
-Dining room
-Kitchen
-3 Bedrooms, 3 bathrooms
-wash and dry out side the house
Watch this vido for more detail:
Buy this house plan
-Layout floor plan
-Sketchup file in Meter
-Autocad file (Layout plan)
* Included files Autocad 2010 and Sketchup 2017
Your could Reach Us: Personal FB:Â Sophoat Toch
Facebook Page:Â Sam Architect
Facebook Group:Â Home Design Idea
More Plans Download On Youtube:Â Sam Phoas Channel
If you think this Plan is useful for you. Please like and share.








Buy this Home Plan 11x16m:
This is a PDF Plan available for Instant Download.
3-Bedrooms 2-Baths home with mini washer/dryer room.
Building size: 52 feet wide, 39 feet deep 16×12 Meters
Roof Type: Shed roof (Concrete cement, zine, cement tile or other supported type)
Foundation: Concrete or other supported material
For the reverse plan, please see other Model.
PLANS INCLUDE:
Footing, Beam, Column Location plan
Exterior / Interior wall Dimension Plan
Roof Beam Plan
Roof Plan, Ceiling light location
Elevations plans
2 Cross Section plans
You are purchasing the PDF file for this plan. Print it out whenever you like, as many times as you like.
Plan prints to A4 paper.
CUSTOM PLANS:
Unfortunately I’m unable to do custom plans at this time.
DISCLAIMER:
These plans were produced by myself and were not prepared by nor checked by a licensed architect and/or engineer.
I do not represent nor imply myself to be a licensed architect and/or licensed engineer.
Enjoy these plans but use them at your own discretion.
Delivery Instant Download
Your files will be available to download once payment is confirmed. Here’s how.
I don’t accept returns, exchanges, or cancellations. But please contact me if you have any problems with your order.
Your could Reach Us: Personal FB:Â Sophoat Toch
Facebook Page: Sam Architect
Facebook Group:Â Home Design Idea
More Plans Download On Youtube:Â House Plans Channel
If you think this Plan is useful for you. Please like and share.
YOU WILL RECIEVED THE DETAILING AS BELOW AFTER BUYING THIS PLAN

Other House plan:
Modern Farmhouse Designs 12Ă—8 Meters 40Ă—26 Feet
Luxury House Plans 12Ă—8 Meters 40Ă—26 Feet 3 Beds
Small House Plans 5Ă—7 Meters 2 Bedrooms
Small House Design Idea 4Ă—9 Meters 36sq.m
House Design 11Ă—6 Meters 36Ă—20 Feet Terrace Roof
Best Small House Designs 9×6 Meter 30×20 Feet
1 Story Modern House 12×12 Meters 40×40 Feet
Modern Small House Design 7×7 Meter 23×23 Feet
Small House Design 7×7 Meter 23×23 Feet Gable Roof
House Plans 12×14 with 4 Bedrooms
Modern House Design 12×14 Meter 40×46 Feet










Reviews
There are no reviews yet.