Description
New House Design 12×14 Meter 40×46 Feet 2 Beds
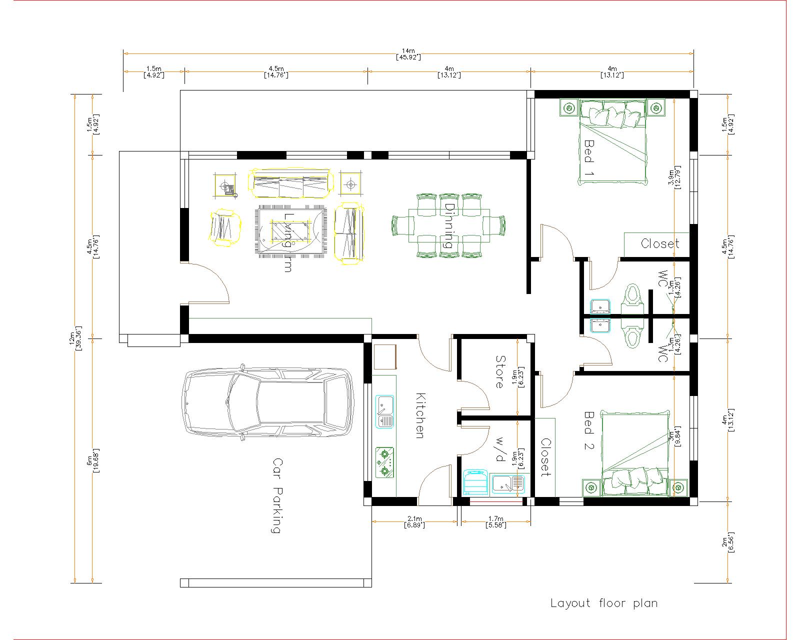
New House Design 12×14 Meter Ground Floor Plans Has:
Firstly, 2 car Parking is at the right side of the house. A nice Terrace entrance in front of the house size 1.5×4.5 meters. When we are going from front door, a small Living with Dining room 4.5×8.5 meter is very perfect for maximum 8 people for this house it is nice and modern. Brightly Kitchen 2.1×4.0 meter, it is clean and beautiful. A multi Bathroom size 1.3 x 2.6 meters. The washing machine 1.7×1.9 meter, storage 1.7×1.9 meter.
The Master Bedroom size is 4.0×4.0 meters, it have two big glass window with a queen size bed, Makeup desk and closet and attached Bathroom size 1.3 x 2.6 meters. Bedrooms 2 size 4.0×3.0 meter.
The Roof Tile:
Finally, The Terrace roof type is made from Concrete that cover above Gypsum board ceiling . It is make the house look simple and modern.


Exterior New House Design 12×14 Meter:
Similarly, to the roof border color we choose a bite dark and light color combination together with a big glass door and window to get the house look so beautiful and Modern house.





House Short Description:
-Car Parking and garden
-Living room,
-Dining room
-Kitchen
-2 Bedrooms, 2 bathrooms
-Storage
-washing room
PLEASE MAKE SURE YOU HAVE CHECK the free sample plans
Check the Plans for more detail:
Buy this house plan: Modern House Design 12×14 Meter 40×46 Feet 2 Beds
-Layout Detailing floor plan, Elevation Plan with dimension.
-Sketchup file can used in Meter and Feet
-Autocad file (All Layout plan)
* Included files Autocad 2010 and Sketchup 2017
Your could Reach Us: Personal FB:Â Sophoat Toch
Facebook Page: Sam Architect
Facebook Group:Â Home Design Idea
More Plans Download On Youtube:Â House Plans Channel
If you think this Plan is useful for you. Please like and share.









Other House plan:
Modern Farmhouse Designs 12×8 Meters 40×26 Feet
Luxury House Plans 12×8 Meters 40×26 Feet 3 Beds
Small House Plans 5×7 Meters 2 Bedrooms
Small House Design Idea 4×9 Meters 36sq.m
House Design 11×6 Meters 36×20 Feet Terrace Roof
Best Small House Designs 9×6 Meter 30×20 Feet
1 Story Modern House 12×12 Meters 40×40 Feet

Front elevation

Back elevation

Right elevation

Left elevation

Roof plan
Modern Small House Design 7×7 Meter 23×23 Feet
Small House Design 7×7 Meter 23×23 Feet Gable Roof
House Plans 12×14 with 4 Bedrooms
Modern House Design 12×14 Meter 40×46 Feet










Reviews
There are no reviews yet.