Extra 20% OFF USE THIS COUPON>>> samdesign20off

Sale!

Small House Design 8×9 with 2 Bedrooms Terrace Roof

Original price was: $99.00.Current price is: $19.99.

Buy this house plan: Small House Design 8×9

Footing, Beam, Column Location plan
Exterior / Interior wall Dimension Plan
Roof Beam Plan
Roof Plan
Elevations plans
2 Cross Section plans
Ceiling Lighting location Plan

-Google Sketchup 2019 file -AutoCad 2018 files

Delivery Instant Download

If you don’t get it contact tsophoat@gmail.com

Click Here to Download the Sample Plan

SKU: 460547712512 Categories: , Tag: Brand:

Description

Small House Design 8×9 meter 27×30 feet  with 2 Bedrooms Terrace Roof Full Plans PDF Floor Plans.

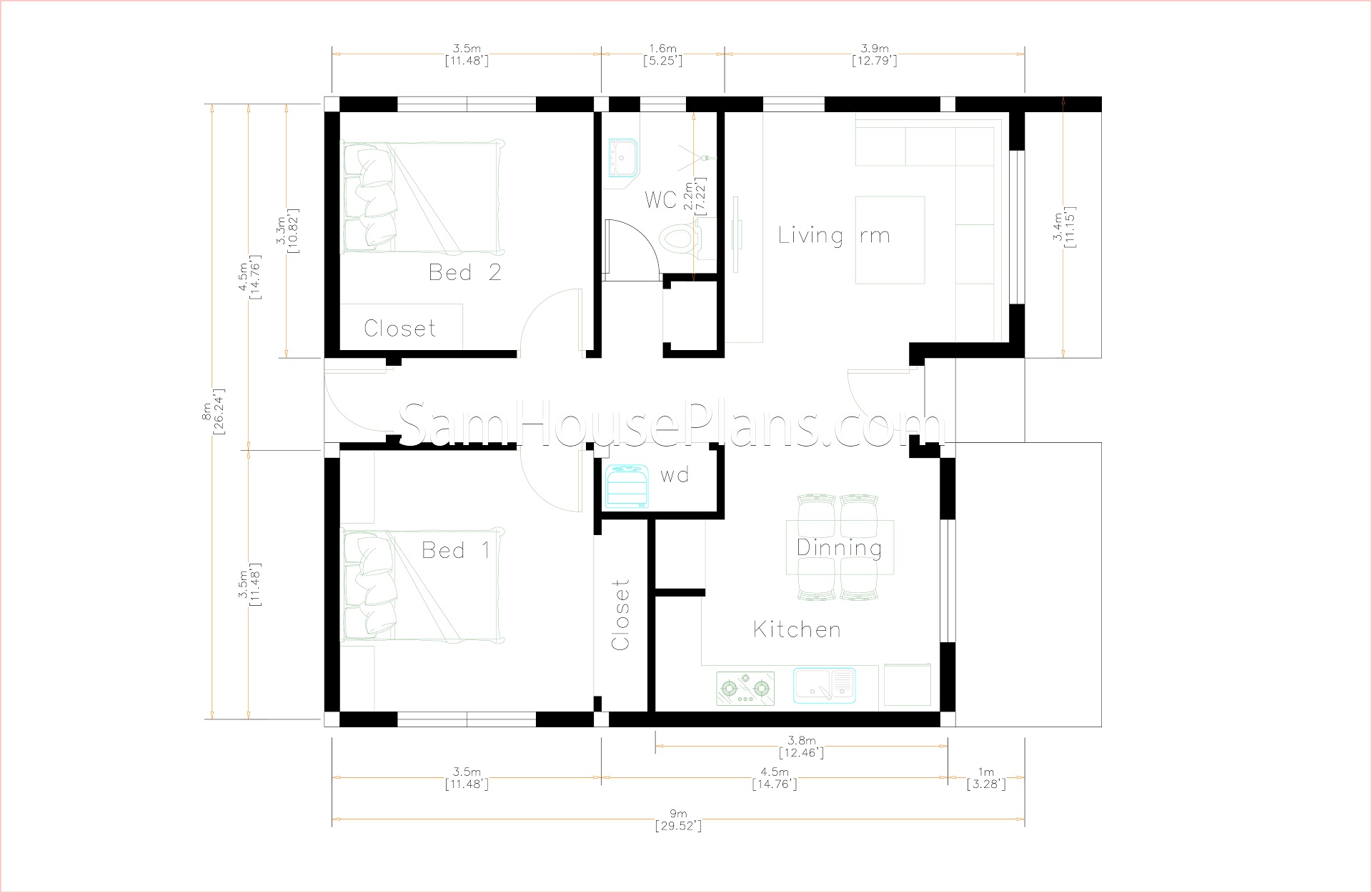
Small House Design 8×9 Ground Floor Plans Has:

Firstly,  cars Parking is out side of the house. A nice Terrace entrance in front of the house. When we are going from front door, a small Living 3.4×3.9 meter is very perfect for this house it is nice and modern. Brightly Kitchen with dining table 3.8×3.5 meter, it is clean and beautiful. A multi Bathroom size 2.2×1.6 meters. The washing machine is in front of the Bathroom 1.6×1 meter, storage is next to the bathroom. This house has stair to the terrace.

The Master Bedroom size is 3.5×3.5 meters, it have a big glass window with a queen size bed, Makeup desk and closet. Bedroom 2 size is 3.5×3.3 meter with closet.

The Roof Tile:

Finally, The terrace roof type is made from Cement roof tiles that cover above Gypsum board ceiling . It is make the house look simple and modern.

Small House Design 8x9 with 2 Bedrooms Terrace Roof 3D Exterior Terrace

Exterior Small House Design 8×9 :

Similarly, to the roof border color we choose a bite dark and light color combination together with a big glass door and window to get the house look so beautiful and Modern house.

Small House Design 8x9 with 2 Bedrooms Terrace Roof 3D Exterior Front

House Short Description:

-Car Parking and garden
-Living room,
-Dining room
-Kitchen
-2 Bedrooms, 1 bathroom
-Storage
-washing room

PLEASE MAKE SURE YOU HAVE CHECK the free sample plans

Buy this house plan:

This is a PDF Plan available for Instant Download.

2-Bedrooms 1-Baths home with mini washer/dryer room.

Building size: 27  feet wide, 30 feet deep 8×9 Meters
Roof Type: Terrace roof (Concrete cement or other supported type)
Foundation: Concrete or other supported material

For the reverse plan, please see other Model.

PLANS INCLUDE:

Footing, Beam, Column Location plan
Exterior / Interior wall Dimension Plan
Roof Beam Plan
Roof Plan
Elevations plans
2 Cross Section plans
Ceiling Lighting location Plan

You are purchasing the PDF file for this plan. Print it out whenever you like, as many times as you like.
Plan prints to A4 paper.

CUSTOM PLANS:
Unfortunately I’m unable to do custom plans at this time.

DISCLAIMER:
These plans were produced by myself and were not prepared by nor checked by a licensed architect and/or engineer.
I do not represent nor imply myself to be a licensed architect and/or licensed engineer.
Enjoy these plans but use them at your own discretion.

Delivery Instant Download

Your files will be available to download once payment is confirmed. Here’s how.

I don’t accept returns, exchanges, or cancellations. But please contact me if you have any problems with your order.

Your could Reach Us: Personal FB: Sophoat Toch

Facebook Page: Sam Architect
Facebook Group: Home Design Idea
More Plans Download On Youtube: House Plans Channel
If you think this Plan is useful for you. Please like and share.

Small House Design 8x9 with 2 Bedrooms Terrace Roof 3D Exterior Right

Small House Design 8x9 with 2 Bedrooms Terrace Roof 3D Exterior Terrace back

Small House Design 8x9 with 2 Bedrooms Terrace Roof 3D Living room 1

Small House Design 8x9 with 2 Bedrooms Terrace Roof 3D Kitchen and dining table1

Small House Design 8x9 with 2 Bedrooms Terrace Roof 3D Kitchen and dining table 2

Small House Design 8x9 with 2 Bedrooms Terrace Roof 3D Bathroom

 

YOU WILL RECIEVED THE DETAILING AS BELOW AFTER BUYING THIS PLAN

 

Other House plan:

Brand

2 Bedrooms House Plan

Reviews

There are no reviews yet.

Be the first to review “Small House Design 8×9 with 2 Bedrooms Terrace Roof”

Your email address will not be published. Required fields are marked *

one + 7 =