Extra 20% OFF USE THIS COUPON>>> samdesign20off

Sale!

Home Design 40x60F with 4 Bedrooms

(1 customer review)

Original price was: $49.99.Current price is: $19.99.

Buy this house plan:

Footing, Beam, Column Location plan
Exterior / Interior wall Dimension Plan
Roof Beam Plan
Roof Plan
Elevations plans
Cross Section plans
Ceiling Lighting location Plan

Delivery Instant Download

If you don’t get it contact tsophoat@gmail.com

Click Here to Download the Sample Plan

 

Description

Home Design 40x60F with 4 Bedrooms

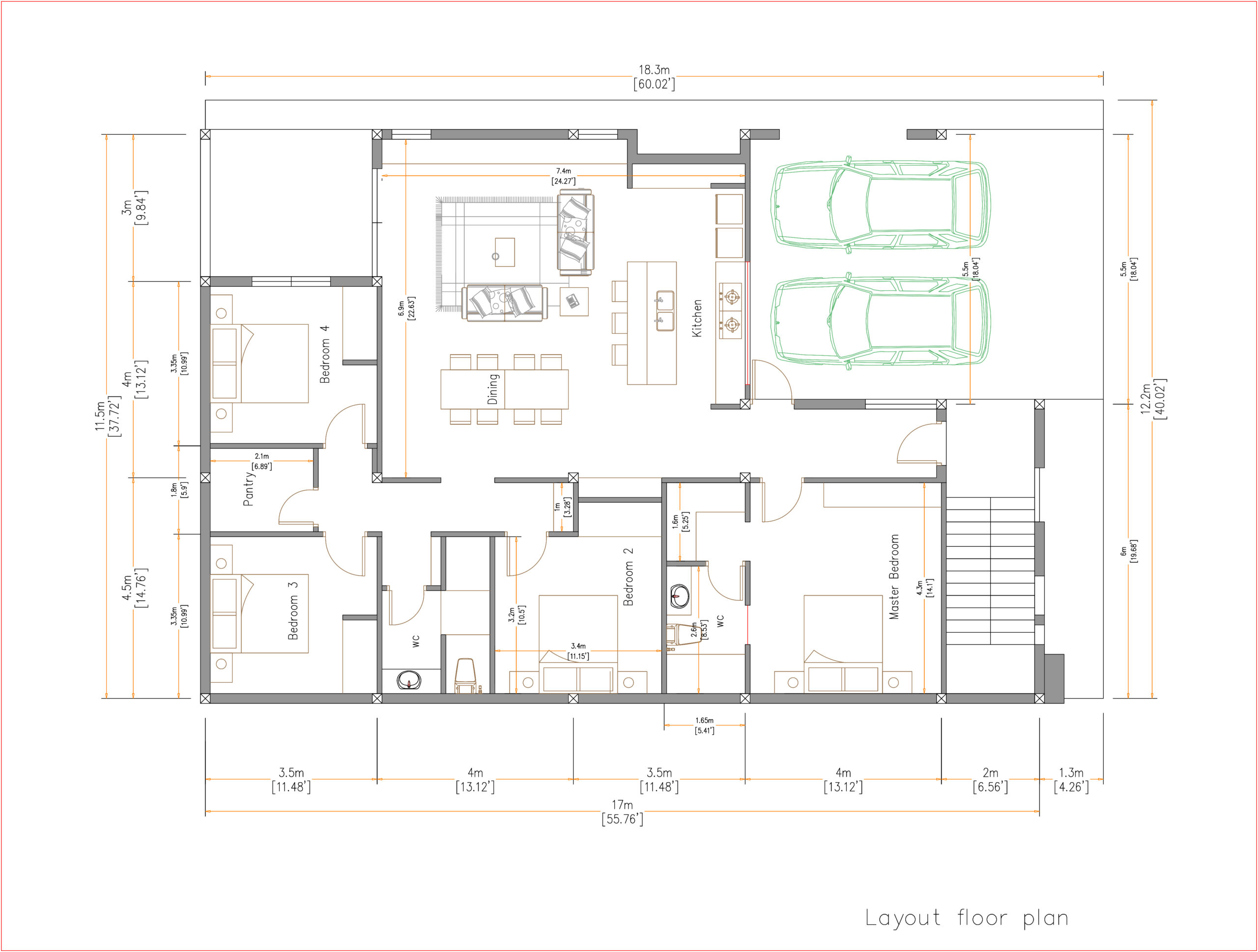
Home Design 40x60F Floor Plans Has:

Ground floor plan: 2 cars parking in front of the house. Next to the car park front of the house is a stair to the terrace. Living room, dining room, and kitchen is open space together. Master bedroom with bathroom, bedroom 2-3-4 used public bathroom. Available pantry.

Watch the Video For More Details:

House Short Description:

-2 Cars Parking and garden
-Living room, Family room
-Dining room
-Kitchen
-4 Bedrooms, 2 bathrooms
-Storage
-washing room

PLEASE MAKE SURE YOU HAVE CHECK the free sample plans

Buy this house plan: House Plan 12×16 with 3 Bedrooms

-Layout Detailing floor plan, Elevation Plan with dimension.

-Sketchup file can used in Meter and Feet

-Autocad file (All Layout plan)

* Included files Autocad 2010 and Sketchup 2017

Your could Reach Us: Personal FB: Sophoat Toch

Facebook Page: Sam Architect
Facebook Group: Home Design Idea
More Plans Download On Youtube: House Plans Channel
If you think this Plan is useful for you. Please like and share.

The Roof Tile:

Finally, The Terrace roof type is made from concrete that cover above Gypsum board ceiling . It is make the house look simple and modern.

Exterior House Plan 40×60:

Similarly, to the roof border color we choose a bite dark and light color combination together with a big glass door and window to get the house look so beautiful and Modern house.

Home Design 40x60F with 4 Bedrooms 1

Home Design 40x60F with 4 Bedrooms

Home Design 40x60F House sort description:

Ground Level:
This house have 2 Doors, the first Main Door access from Car park the Second access from kitchen.
The House has
-2 Car Parking small garden access to kitchen
-Living room,
-Dining room,
-Kitchen,
-Master Bedrooms with bathroom
-3 Bedrooms, one bathroom
-Pantry
-Store under stair
-Stair up to terrace

Modern Small House Design 7×7 Meter 23×23 Feet

You will have after buy this plan:

Other house Plans:

Brand

4 Bedrooms House Plan

1 review for Home Design 40x60F with 4 Bedrooms

  1. samhouseplans

    Thank for review this plan

Add a review

Your email address will not be published. Required fields are marked *