Description
Small House Design 6×12 Meter With 2 Bedrooms Free Detailing Shed roof Full PDF Plans. This house is perfect for Single family that need 2 bedrooms.
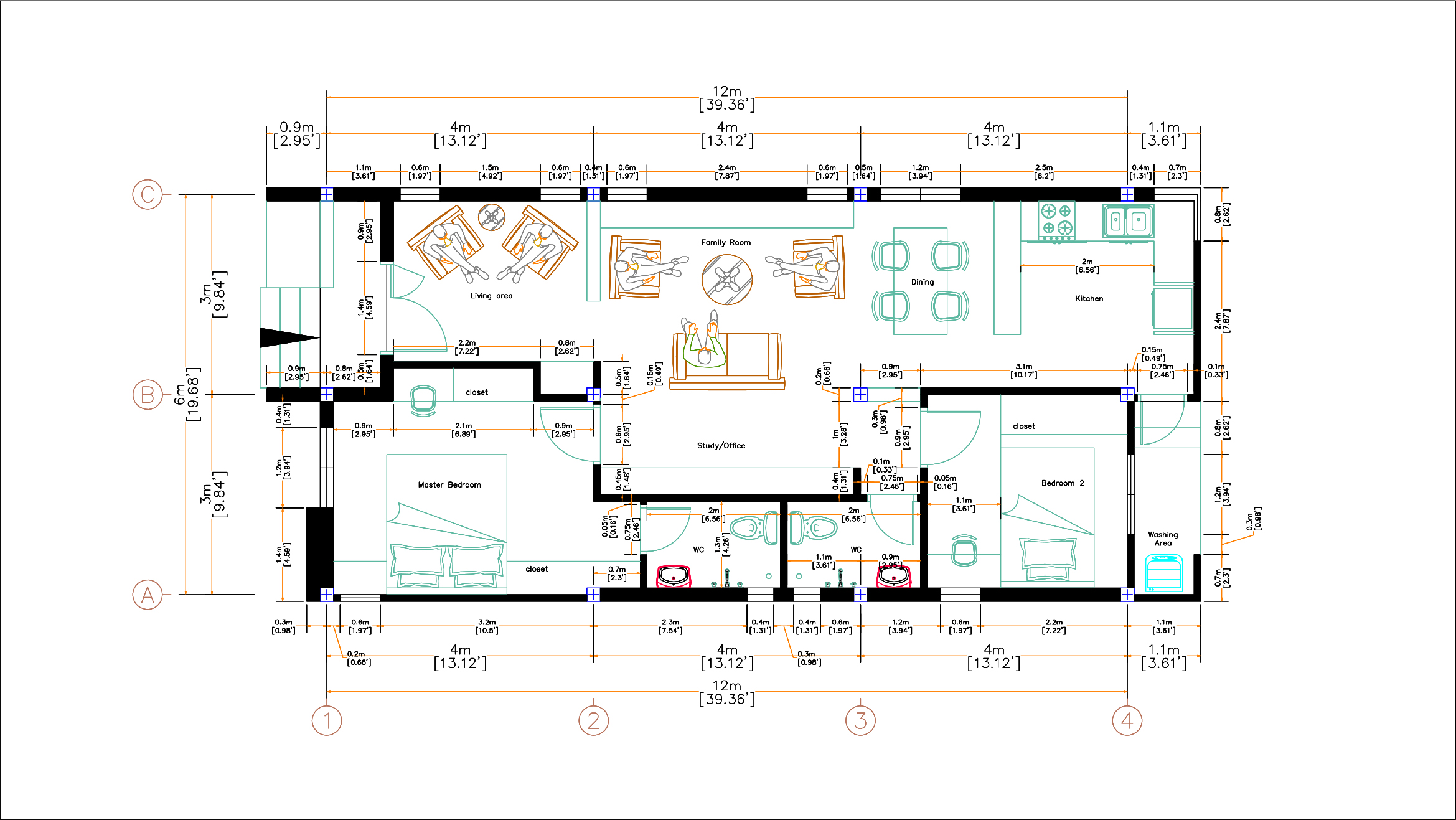
Small House Design 6×12 Floor Plans Has:
Car Parking is at out side of the house. A nice Terrace entrance in front of the house 1×7 meters. When we are going from front door, a Living 3×3.5 meter is very perfect for this house it is nice and modern. Family room 4×3 meter with study area/office 1.5×4 meter. Brightly Kitchen area 3×5 meter with dining table, it is beautiful. A multi Bathroom size 1.3×2 meters. The washing area at the back of the house.
The Master Bedroom size is 3×4 meter, it has 1 big and 1 narrow glass window with a queen size bed, Makeup desk and closet , attached with bathroom 1.3×2 meter. Bedroom 2 size 3×3 meter.
Exterior Small House Design 6×12:
Similarly, to the roof border color we choose a bite dark and light color combination together with a big glass door and window to get the house look so beautiful and Modern house.
The Shed Roof Tile:
Finally, The Shed roof type is made from cement tiles or zine that cover above Gypsum board ceiling . It is make the house look simple and modern.
House Short Description:
-Out door Car Parking
-Living room
-Family room
-Office/Study area
-Dining room
-Kitchen
-2 Bedrooms, 2 bathrooms
-Small Storage
-washing
PLEASE MAKE SURE YOU HAVE CHECK the free sample plans
Interior Walk Through:
Exterior Design 3d:
Elevation Design 3d:
Interior Design 3d:
The PDF Layout Plans:
YOU WILL RECIEVED THE DETAILING AS BELOW AFTER BUYING THIS PLAN
Buy this Small House Design 6×12Â :
This is a PDF Plan available for Instant Download.
2-Bedrooms 2-Baths.
Building size: 20 feet wide, 40 feet deep 6×12 Meters
Roof Type: Shed roof (Concrete cement, zine, cement tile or other supported type)
Foundation: Concrete or other supported material
For the reverse plan, please see other Model.
PLANS INCLUDE Small House Design 6×12:
Footing, Beam, Column Location plan
Exterior / Interior wall Dimension Plan
Roof Beam Plan
Roof Plan
Elevations plans
4 Cross Section plans
Ceiling Lighting location Plan
You are purchasing the PDF file for this plan. Print it out whenever you like, as many times as you like.
Plan prints to A4 paper.
CUSTOM PLANS:
Unfortunately I’m unable to do custom plans at this time.
DISCLAIMER:
These plans were produced by myself and were not prepared by nor checked by a licensed architect and/or engineer.
I do not represent nor imply myself to be a licensed architect and/or licensed engineer.
Enjoy these plans but use them at your own direction.
Delivery Instant Download
Your files will be available to download once payment is confirmed. Here’s how.
I don’t accept returns, exchanges, or cancellations. But please contact me if you have any problems with your order.
Your could Reach Us: Personal FB:Â Sophoat Toch
Facebook Page: Sam Architect
Facebook Group:Â Home Design Idea
More Plans Download On Youtube:Â House Plans Channel
If you think this Plan is useful for you. Please like and share.
Other House plan:
Modern Farmhouse Designs 12×8 Meters 40×26 Feet
Luxury House Plans 12×8 Meters 40×26 Feet 3 Beds
Small House Plans 5×7 Meters 2 Bedrooms
Small House Design Idea 4×9 Meters 36sq.m
House Design 11×6 Meters 36×20 Feet Terrace Roof
Best Small House Designs 9×6 Meter 30×20 Feet
1 Story Modern House 12×12 Meters 40×40 Feet
Modern Small House Design 7×7 Meter 23×23 Feet
Small House Design 7×7 Meter 23×23 Feet Gable Roof












































Reviews
There are no reviews yet.