Description
Modern House Design Plan 11×10.5 Full Interior Design with 2 Bedrooms 36×35 Feet 115 sqm Full Plans. This villa is perfect for family that have three bedrooms. Est. Price around 23k-34k usd.
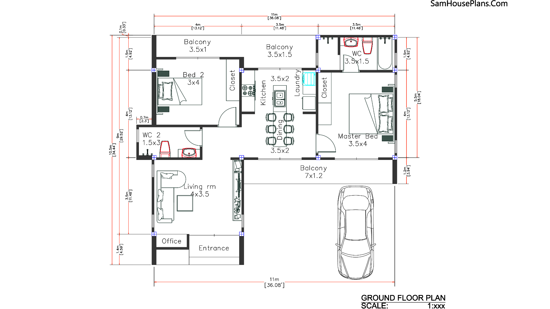
Modern House Design Plan 11×10.5 Ground Floor Plans Has:
Firstly, car Parking is at the Out side of the house. A nice Terrace entrance in front of the house 1.4×2.5 meters. When we are going from front door, a Living 4×3.5 meter is very perfect for this house it is nice and modern. Brightly dining area 3.5×2 meter open space with kitchen it is beautiful. Kitchen 3.5×2 meter. A multi Bathroom size 3×1.5 meters. The washing machine is in the kitchen.
The Master Bedroom size is 3.5×4 meters, it have a big glass sliding door with a queen size bed, Makeup desk and walk in closet , attached with bathroom 3.5×1.5 meter. Bedroom 2 size 3×4 meter. Front balcony 7×12 meter and the back balcony 7×1.5 meter.
Exterior Modern House Design Plan 11×10.5:
Similarly, to the roof border color we choose a bite dark and light color combination together with a big glass door and window to get the house look so beautiful and Modern house.

The Gable Roof Tile:
Finally, The Gable roof type is made from Cement tile that cover above Gypsum board ceiling . It is make the house look simple and modern.

House Short Description:
-Car Parking and garden
-Living room,
-Dining room
-Kitchen
-2Bedrooms, 2 bathrooms
-Small Storage
-washing room
PLEASE MAKE SURE YOU HAVE CHECK the free sample plans
Exterior Design 3d:
Elevation Design 3d:
Interior Design 3d:




















The PDF Layout Plans:

YOU WILL RECIEVED THE DETAILING AS BELOW AFTER BUYING THIS PLAN
Buy this house plan:
This is a PDF Plan available for Instant Download.
2-Bedrooms 2-Baths home with mini washer/dryer room.
Building size: 36 feet wide, 35 feet deep 11×10.5 Meters
Roof Type: Gable roof (Concrete cement, zine, cement tile or other supported type)
Foundation: Concrete or other supported material
For the reverse plan, please see other Model.
PLANS INCLUDE:
Footing, Beam, Column Location plan
Exterior / Interior wall Dimension Plan
Roof Beam Plan
Roof Plan
Elevations plans
2 Cross Section plans
Ceiling Lighting location Plan
You are purchasing the PDF file for this plan. Print it out whenever you like, as many times as you like.
Plan prints to A4 paper.
CUSTOM PLANS:
Unfortunately I’m unable to do custom plans at this time.
DISCLAIMER:
These plans were produced by myself and were not prepared by nor checked by a licensed architect and/or engineer.
I do not represent nor imply myself to be a licensed architect and/or licensed engineer.
Enjoy these plans but use them at your own direction.
Delivery Instant Download
Your files will be available to download once payment is confirmed. Here’s how.
I don’t accept returns, exchanges, or cancellations. But please contact me if you have any problems with your order.
Your could Reach Us: Personal FB:Â Sophoat Toch
Facebook Page: Sam Architect
Facebook Group:Â Home Design Idea
More Plans Download On Youtube:Â House Plans Channel
If you think this Plan is useful for you. Please like and share.
Other House plan:
Modern Farmhouse Designs 12×8 Meters 40×26 Feet
Luxury House Plans 12×8 Meters 40×26 Feet 3 Beds
Small House Plans 5×7 Meters 2 Bedrooms
Small House Design Idea 4×9 Meters 36sq.m
House Design 11×6 Meters 36×20 Feet Terrace Roof
Best Small House Designs 9×6 Meter 30×20 Feet
1 Story Modern House 12×12 Meters 40×40 Feet
Modern Small House Design 7×7 Meter 23×23 Feet
Small House Design 7×7 Meter 23×23 Feet Gable Roof



































Reviews
There are no reviews yet.