Description
House Plans 6x11m with 3 Bedrooms PDF Full Plans 20×36 Feet. If you are looking for 3 bedrooms house for your small family this house is perfect House plan for you.
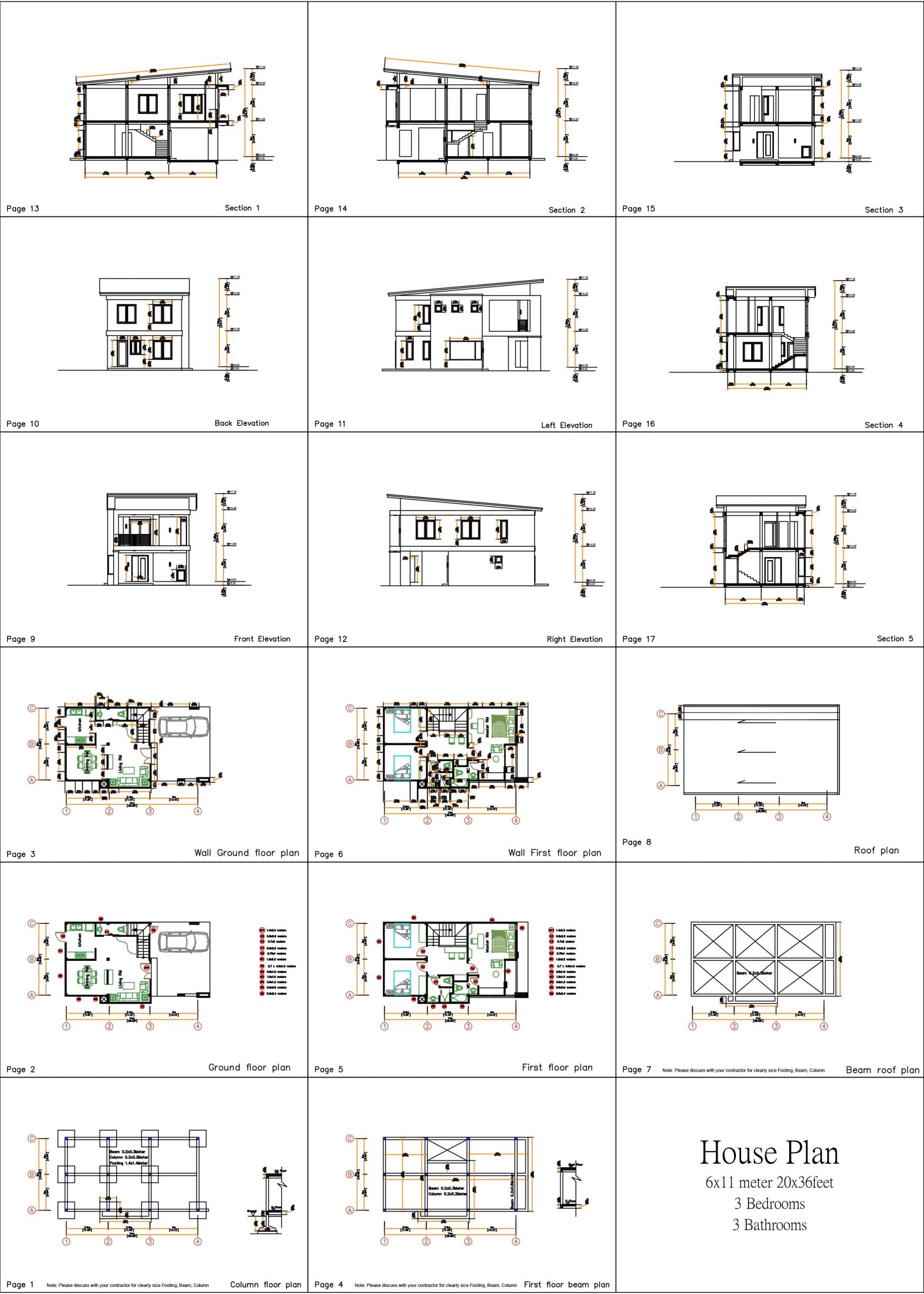
House Plans 6x11m Floor Plans Has:
House Plans 6x11m Ground floor have 2 cars Parking is in front of the house 5×6 meter. A nice Terrace entrance in front of the house. When we are going from front door, a Living 3.4×4 meters is very perfect for this house it is nice and modern. Brightly Kitchen 3×2.6 meters, Dining area 3×3.6 meter, it is clean and beautiful. Storage is under the stair. Bathroom 1×3 meter.
Finally, at first floor: the Master Bedroom size is 4×6 meters attached with bathroom 2×2 meters, it also has a big glass door to balcony 1×3 meter with a queen size bed, Makeup desk and walk in closet. Bedroom 2 size 3×3.6 meter and Bedroom 3 size 3×3.6 meter. Multi Bathroom 2.5×2.5 meter and study area 3×2.6 meter.
Watch the Video For More Details:
Exterior House Plans 6x11m:
Similarly, to the roof border color we choose a bite dark and light color combination together with a big glass door and window to get the house look so beautiful and Modern house.
The Shed Roof Tile:
Finally, The Shed roof type is made from Cement roof tiles that cover above Gypsum board ceiling . It is make the house look simple and modern.
House Short Description:
-2 Cars Parking and garden
-Living room
-Dining room
-Kitchen, storage, build in cabinets
-3 Bedrooms, 3 bathrooms, balcony
-Storage
-washing room, Study room
PLEASE MAKE SURE YOU HAVE CHECK the free sample plans
Exterior House design 3d:
Interior 3d:
PDF Layout Detailing Plans:
Buy this House Plans 6x11m:
This is a PDF Plan available for Instant Download.
3-Bedrooms 3-Baths home with mini washer/dryer room.
Building size: 20 feet wide, 36 feet deep. In Meters 6×11
Roof Type: Shed roof (Cement tile, Concrete cement or other supported type)
Foundation: Concrete or other supported material
For the reverse plan, please see other Model.
PLANS INCLUDE:
Footing, Beam, Column Location plan
Exterior / Interior wall Dimension Plan
Roof Beam Plan
Roof Plan
Elevations plans
4 Cross Section plans
You are purchasing the PDF file for this plan. Print it out whenever you like, as many times as you like.
Plan prints to A4 paper.
CUSTOM PLANS:
Unfortunately I’m unable to do custom plans at this time.
DISCLAIMER:
These plans were produced by myself and were not prepared by nor checked by a licensed architect and/or engineer.
I do not represent nor imply myself to be a licensed architect and/or licensed engineer.
Enjoy these plans but use them at your own discretion.
Delivery Instant Download
Your files will be available to download once payment is confirmed. Here’s how.
I don’t accept returns, exchanges, or cancellations. But please contact me if you have any problems with your order.
Your could Reach Us: Personal FB:Â Sophoat Toch
Facebook Page: Sam Architect
Facebook Group:Â Home Design Idea
More Plans Download On Youtube:Â House Plans Channel
If you think this Plan is useful for you. Please like and share.
YOU WILL RECIEVED THE DETAILING AS BELOW AFTER BUYING THIS PLAN
Other House plan:
Modern Farmhouse Designs 12×8 Meters 40×26 Feet
Luxury House Plans 12×8 Meters 40×26 Feet 3 Beds
5×7 Small House Plans Meters 2 Bedrooms
Best Small House Design Idea 4×9 Meters 36sq.m
11×6 House Design Meters 36×20 Feet Terrace Roof
Best Small House Designs 9×6 Meter 30×20 Feet
1 Story Modern House 12×12 Meters 40×40 Feet
Modern Small House Design 7×7 Meter 23×23 Feet
7×7 Small House Design Meter 23×23 Feet Gable Roof

Small Home Design Plan 6x11m with 3 Bedrooms

















Reviews
There are no reviews yet.