Description
Small House Design Plans 8×6 with 2 Bedrooms Gable roof
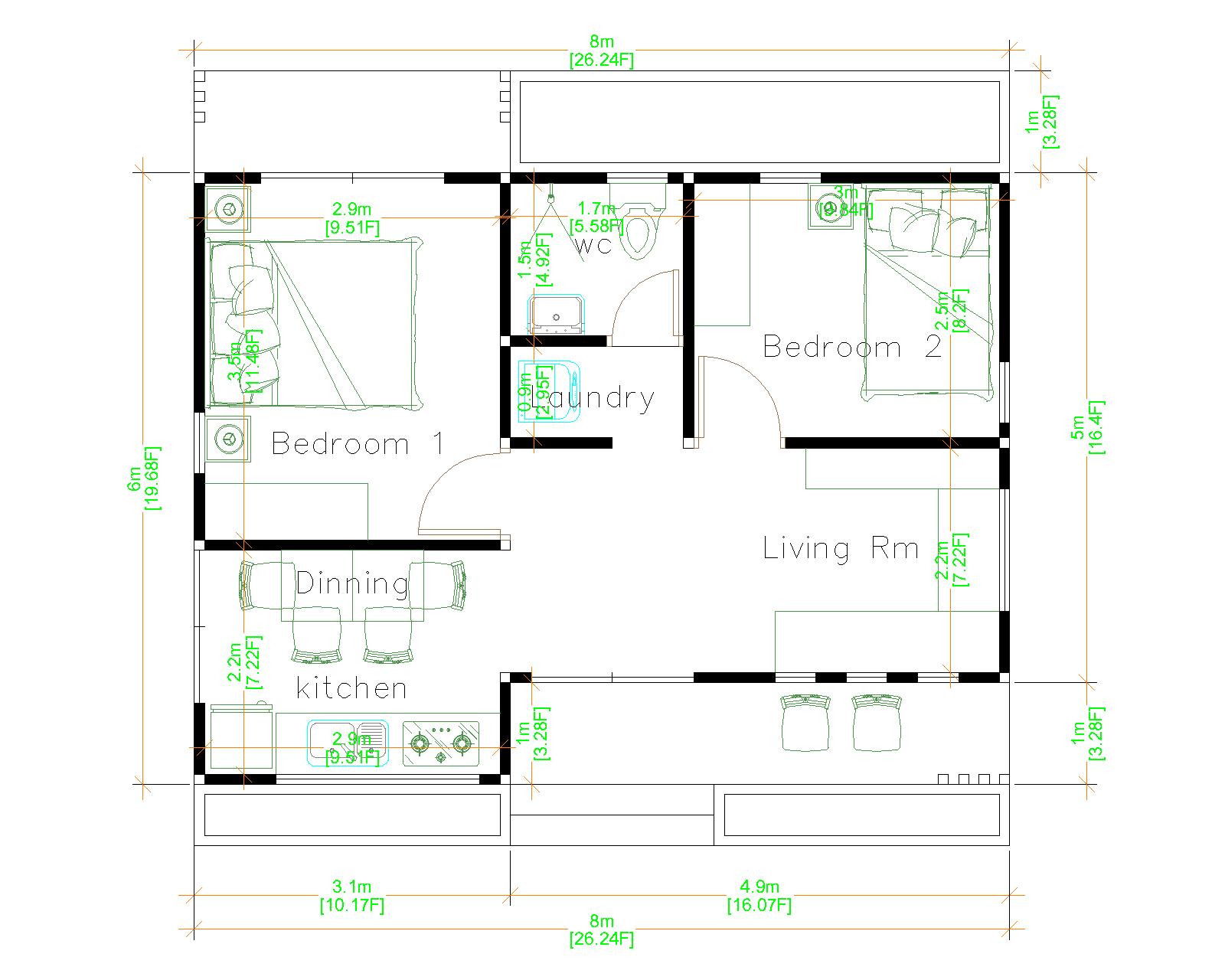
Small House Design Plans 8×6 Ground Floor Plans Has:
Firstly, Parking is at the Out side of the house. A nice Terrace entrance in front of the house size 1.0×4.9 meters. When we are going from front door, a hall 1.7×2.3 meter and a small Living 3.2×2.3 meter.Brightly Kitchen with Dining room is very perfect for maximum 4 people for this house it is nice and modern 3.1×2.3 meter, it is clean and beautiful. The bathroom size 1.7×1.7 meter. The washing machine 1.7×1.0 meter.
The Master Bedroom size is 3.1×3.7 meters, it have one big glass door to the back terrace with a queen size bed, Makeup desk and closet, but no attached Bathroom. Bedrooms 2 size 3.2×2.7 meter.
The Roof Tile:
Finally, The Gable roof type is made from Concrete that cover above Gypsum board ceiling . It is make the house look simple and modern.

The House has:
-Car Parking and garden
-Living room,
-Dining room
-Kitchen
-2 Bedrooms, 1 bathroom
-washing room
PLEASE MAKE SURE YOU HAVE CHECK the free sample plans
Check the floor plans for more detail:
Buy this house plan: Small House Design Plans 8×6 with 2 Bedrooms Gable roof
-Layout floor plan, Elevation Plan
-Sketchup file in Meter
-Autocad file (All Layout plan)
* Included files Autocad 2010 and Sketchup 2017
Your could Reach Us: Personal FB:Â Sophoat Toch
Facebook Page: Sam Architect
Facebook Group:Â Home Design Idea
More Plans Download On Youtube:Â House Plans Channel
If you think this Plan is useful for you. Please like and share.
Exterior Small House Design Plans 8×6:
Similarly, to the roof border color we choose a bite dark and light color combination together with a big glass door and window to get the house look so beautiful and Modern house.






Other Floor plans:
















Reviews
There are no reviews yet.