Description
Small House Design 7×11 Meters 2 Beds Shed Roof 23×36 Feet Full PDF plans.
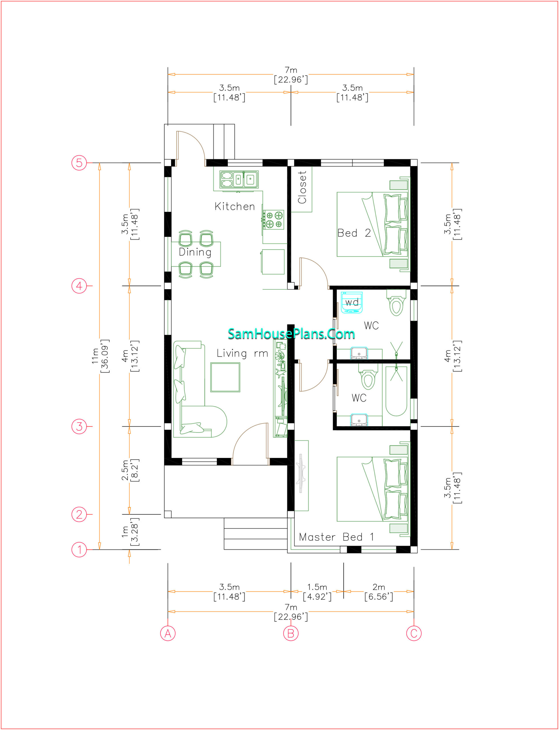
Small House Design 7×11 Ground Floor Plans Has:
Firstly, car Parking is at the right side of the house. A nice Terrace entrance in front of the house size 1.5×3.5 meters. When we are going from front door, a small Living 5×3.5 meter is very perfect for maximum 6 people for this house it is nice and modern. Brightly Kitchen with dining table 3.5×3.5 meter, it is clean and beautiful. A multi Bathroom size 2.2 x 2.3 meters. The washing machine is in the bathroom, storage is under the stair.
The Master Bedroom size is 5.4×3.5 meters, it have a big corner glass window with a queen size bed, Makeup desk and closet and attached Bathroom size 1.8×2.3 meters. Bedrooms 2 size 3.5×3.5 meter.
The Roof Tile:
Finally, The Shed roof type is made from zine roof tiles that cover above Gypsum board ceiling . It is make the house look simple and modern.

Exterior Small House Design 7×11:
Similarly, to the roof border color we choose a bite dark and light color combination together with a big glass door and window to get the house look so beautiful and Modern house.

House Short Description:
-Car Parking and garden
-Living room,
-Dining room
-Kitchen
-2 Bedrooms, 2 bathrooms
-Storage
-washing room
PLEASE MAKE SURE YOU HAVE CHECK the free sample plans
Check the Plans for more detail:
Buy this house plan: Small House Design 7×11 meters 23×36 Feet Terrace Roof
-Footing Column and Beam plan
-Layout Detailing floor plan, Elevation Plan with dimension, and section plan
-Sketchup file can used in Meter and Feet
-Autocad file (All Layout plan)
* Included files Autocad 2010 and Sketchup 2017
Your could Reach Us: Personal FB:Â Sophoat Toch
Facebook Page: Sam Architect
Facebook Group:Â Home Design Idea
More Plans Download On Youtube:Â House Plans Channel
If you think this Plan is useful for you. Please like and share.





Other House plan:
Modern Farmhouse Designs 12×8 Meters 40×26 Feet
Luxury House Plans 12×8 Meters 40×26 Feet 3 Beds
Small House Plans 5×7 Meters 2 Bedrooms
Small House Design Idea 4×9 Meters 36sq.m
House Design 11×6 Meters 36×20 Feet Terrace Roof
Best Small House Designs 9×6 Meter 30×20 Feet
1 Story Modern House 12×12 Meters 40×40 Feet









Modern Small House Design 7×7 Meter 23×23 Feet
Small House Design 7×7 Meter 23×23 Feet Gable Roof
House Plans 12×14 with 4 Bedrooms
Modern House Design 12×14 Meter 40×46 Feet










Reviews
There are no reviews yet.