Description
House Plans 7x10m with 6 Bedrooms. This villa is modeling by SAM-ARCHITECT With Three stories level. It’s has 6 bedrooms.
House Plans 7x10m Floor Plans Has:
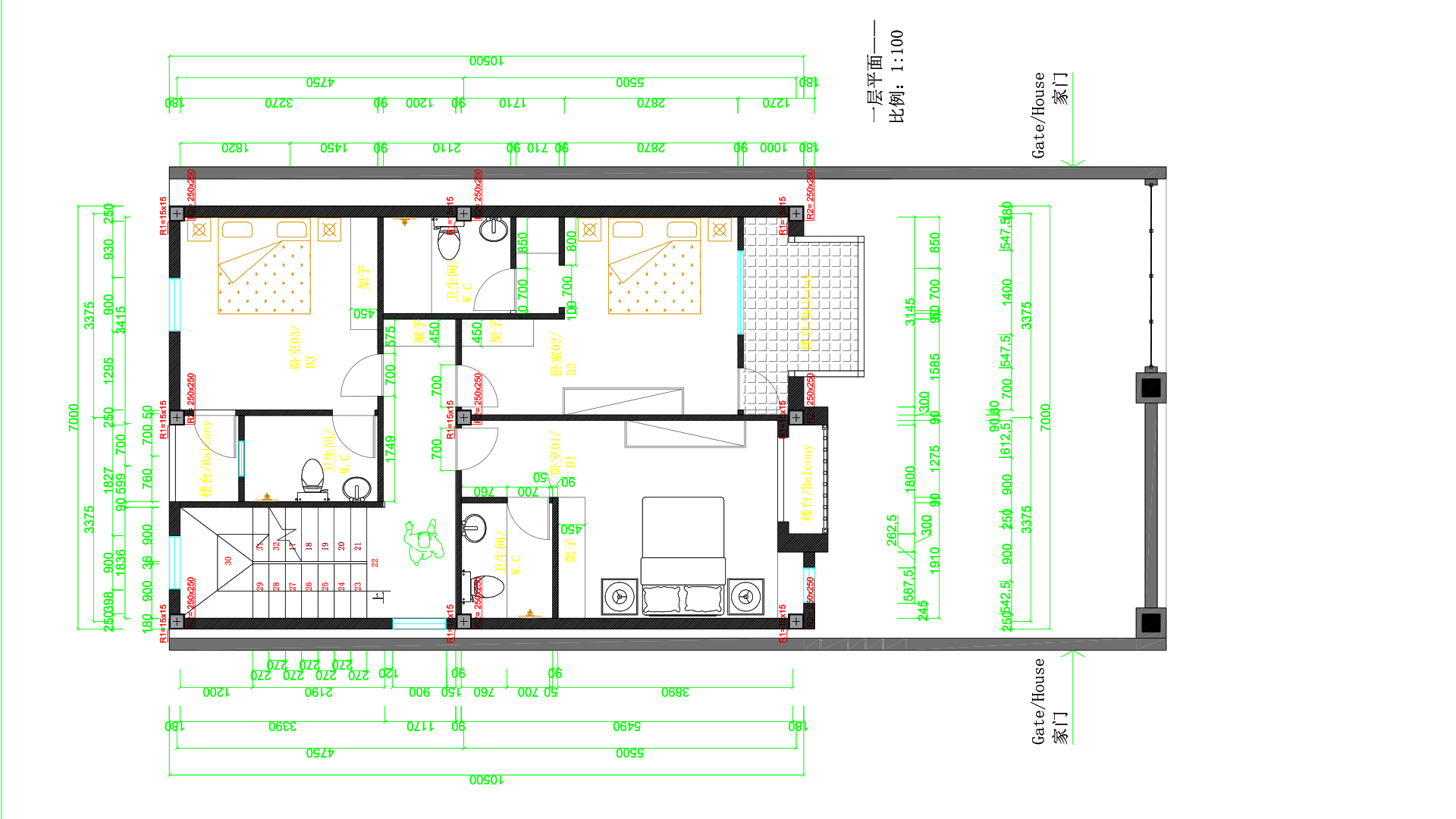
Firstly, Ground floor, 1 car Parking is at the right side of the house 3.5×5 meter. A nice Terrace entrance in front of the house size 1×3.5 meters. When we are going from front door, a Living 3.5×3.5 meters is very perfect for this house it is nice and modern. Brightly Kitchen 3.5×3 meters with Dining table 3×3.5 meter, it is clean and beautiful. Storage is under the stair 1.4×2.5 meter. Bathroom 1.2×2.5 meter and Washing Area 1.2×2.5 meter. Bedroom 3 size is 3×3.5 meter with walk in closet 1.8×3 meter.
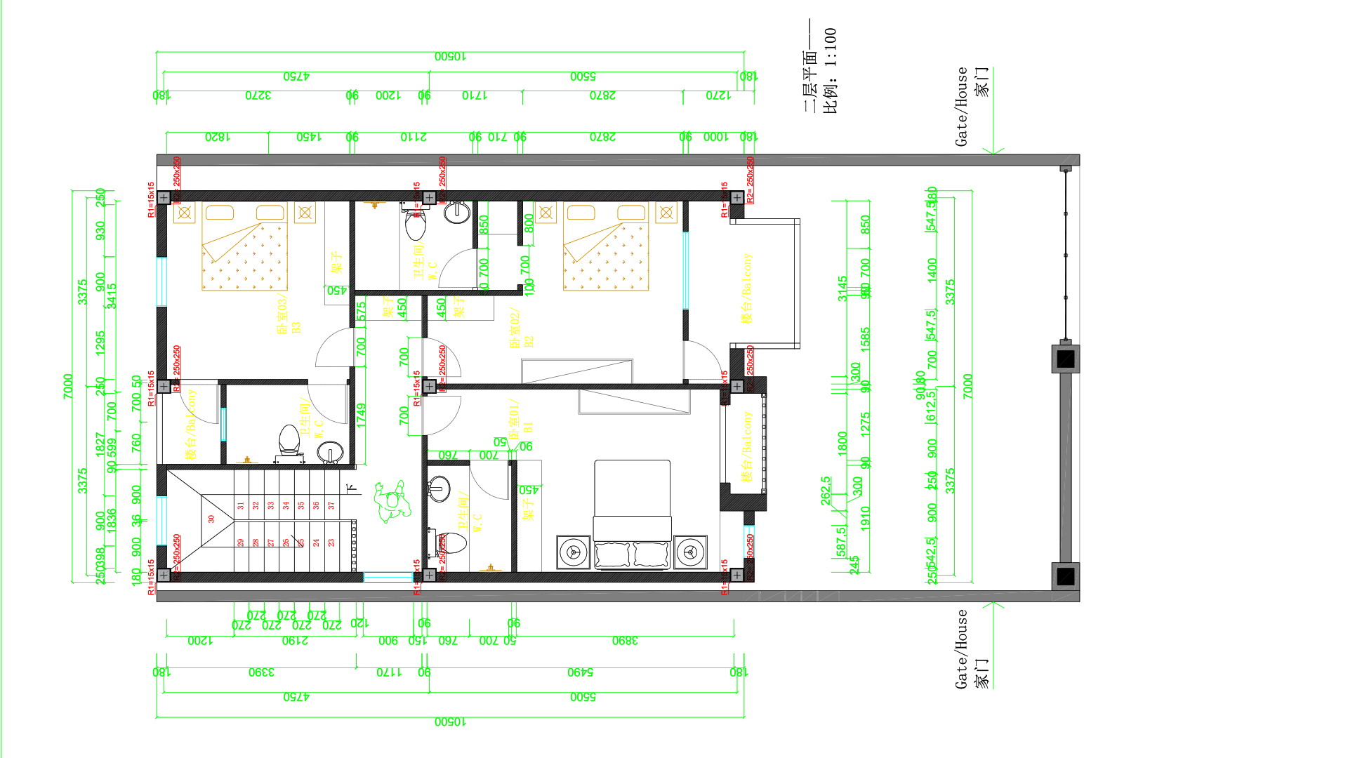
Finally, at first floor: the Master Bedroom size is 6.5×3.5 meters attached with bathroom 3×2.5 meters, it also has a big glass door to balcony 1.5×6 meter with a queen size bed, Makeup desk and walk in closet 3.5×3 meter. Bedroom 2 size 3×3.5 meter with bathroom 1.7×3 meter and balcony 1.2×3.5 meter, walk in closet 1.8×3 meters. Hall area 2.5×3 meter.
House Plans 7x10m description:
The House has 3 Story Level
-1 Car Parking small garden
-Living room,
-Dining room,
-Kitchen,
-6 Bedrooms with 6 bathrooms
-1 Restroom
Watch the Video For More Details:
Exterior House Plans 7x10m:
Similarly, to the roof border color we choose a bite dark and light color combination together with a big glass door and window to get the house look so beautiful and Modern house.


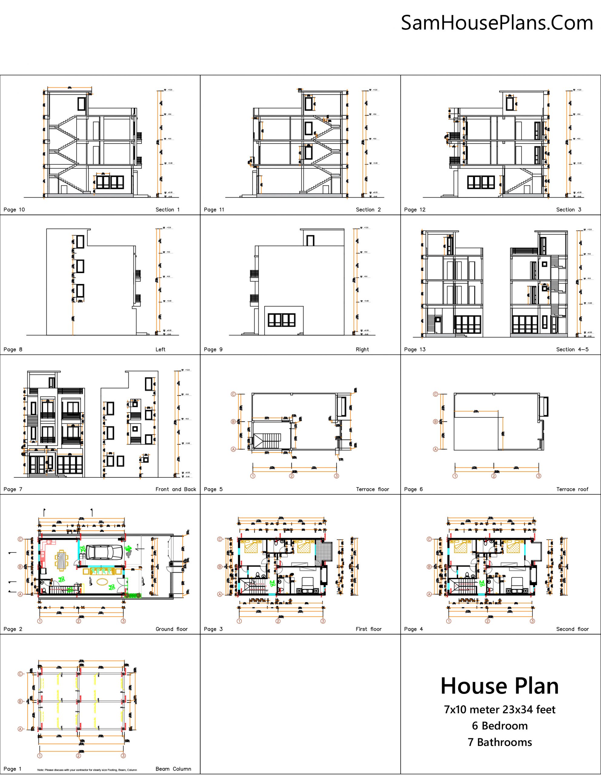
PDF Layout Detailing Plans:
Buy this House Design Plan 9.5×11:
This is a PDF Plan available for Instant Download.
6-Bedrooms 7-Baths home with mini washer/dryer room.
Building size: 22 feet wide, 34 feet deep. In Meters 7×10
Roof Type: Terrace roof (Cement tile, Concrete cement or other supported type)
Foundation: Concrete or other supported material
For the reverse plan, please see other Model.
PLANS INCLUDE:
Footing, Beam, Column Location plan
Exterior / Interior wall Dimension Plan
Roof Beam Plan
Roof Plan
Elevations plans
4 Cross Section plans
You are purchasing the PDF file for this plan. Print it out whenever you like, as many times as you like.
Plan prints to A4 paper.
CUSTOM PLANS:
Unfortunately I’m unable to do custom plans at this time.
DISCLAIMER:
These plans were produced by myself and were not prepared by nor checked by a licensed architect and/or engineer.
I do not represent nor imply myself to be a licensed architect and/or licensed engineer.
Enjoy these plans but use them at your own discretion.
Delivery Instant Download
Your files will be available to download once payment is confirmed. Here’s how.
I don’t accept returns, exchanges, or cancellations. But please contact me if you have any problems with your order.
Your could Reach Us: Personal FB:Â Sophoat Toch
Facebook Page: Sam Architect
Facebook Group:Â Home Design Idea
More Plans Download On Youtube:Â House Plans Channel
If you think this Plan is useful for you. Please like and share.
YOU WILL RECIEVED THE DETAILING AS BELOW AFTER BUYING THIS PLAN

Other House plan:
Modern Farmhouse Designs 12Ă—8 Meters 40Ă—26 Feet
Luxury House Plans 12Ă—8 Meters 40Ă—26 Feet 3 Beds
5×7 Small House Plans Meters 2 Bedrooms
Best Small House Design Idea 4Ă—9 Meters 36sq.m
11×6 House Design Meters 36Ă—20 Feet Terrace Roof
Best Small House Designs 9×6 Meter 30×20 Feet
1 Story Modern House 12×12 Meters 40×40 Feet
Modern Small House Design 7×7 Meter 23×23 Feet
7×7 Small House Design Meter 23×23 Feet Gable Roof


OTHER DESIGN VIDEO:


















Reviews
There are no reviews yet.