Description
House Plans 6x7m with 2 bedrooms PDF Full Plans 20×23 Feet. If you are looking for 2 bedrooms house for your small family this house is perfect House plan for you.
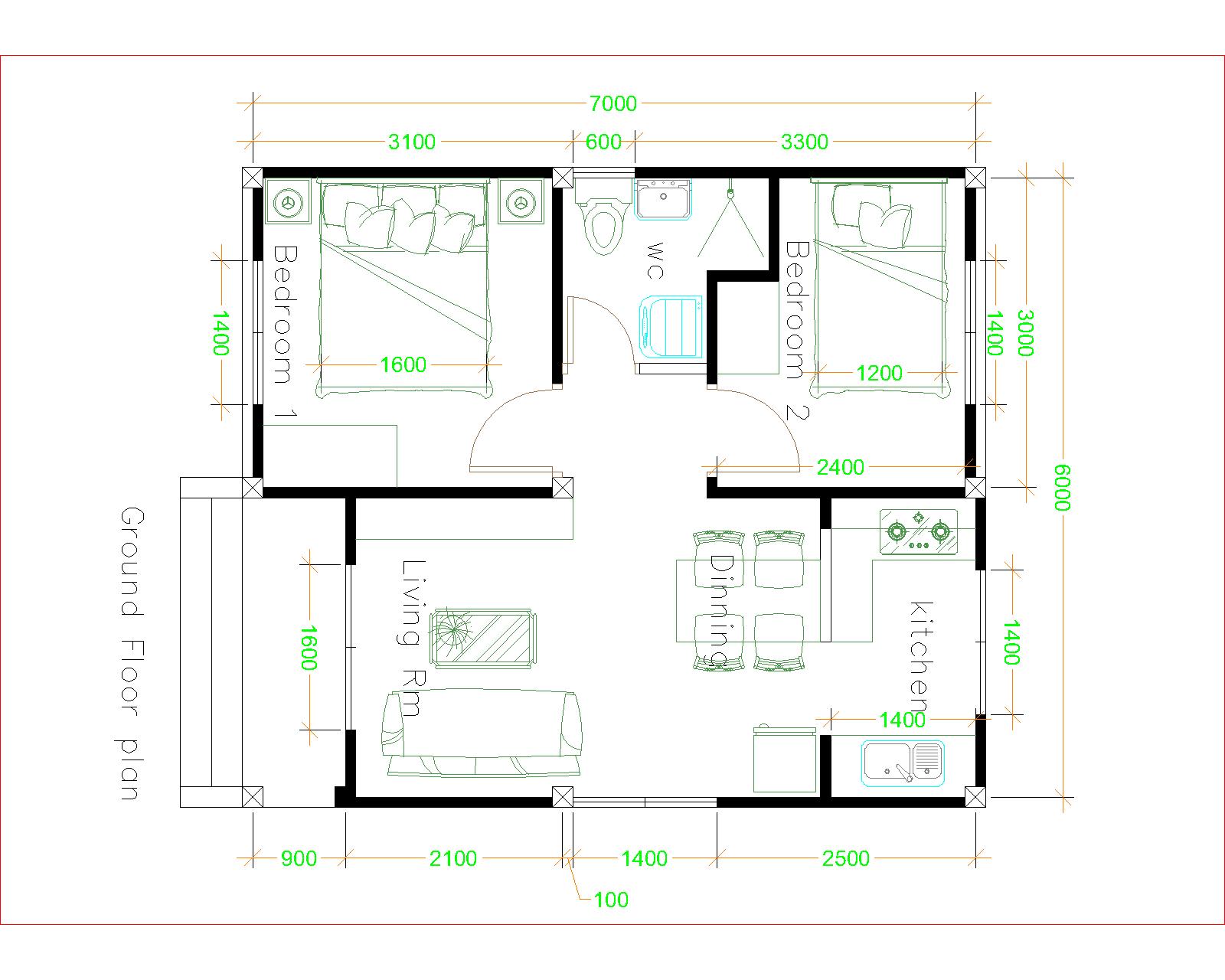
House Plans 6x7m Floor Plans Has:
Looking at the Ground floor, car Parking is out side of the house. A nice Terrace entrance in front of the house size 1×3 meters. When we are going from front door, a Living 3×4.5 meters with dining table is very perfect for this house it is nice and modern. Brightly Kitchen 1.5×3 meters, it is clean and beautiful. Bathroom with Washing machine. Bedroom 1 size is 3×3.1 meter with closet, Bedroom 2 size is 3×2.4 meter with closet.
Watch this video for more detail:
Exterior House Plans 6x7m:
Similarly, to the roof border color we choose a bite dark and light color combination together with tempered glass for door and window to get the house look so beautiful and Modern house.

The Gable Roof Tile:
Finally, The Gable roof type is made from Cement roof tiles that cover above Gypsum board ceiling . It is make the house look simple and modern.

House Short Description:
-Car Parking and garden
-Living room
-Dining room
-Kitchen, storage, build in cabinets
-2 Bedrooms, 1 bathrooms-Storage
-washing room
PLEASE MAKE SURE YOU HAVE CHECK the free sample plans
Exterior House design 3d:





Elevation 3d:






Interior 3d:





PDF Layout Detailing Plans:
Buy this House Plans 6x7m:
This is a PDF Plan available for Instant Download.
2-Bedrooms 1-Bath home with mini washer/dryer room.
Building size: 20 feet wide, 23 feet deep. In Meters 6×7
Roof Type: Gable roof (Cement tile, Concrete cement or other supported type)
Foundation: Concrete or other supported material
For the reverse plan, please see other Model.
PLANS INCLUDE:
Footing, Beam, Column Location plan
Exterior / Interior wall Dimension Plan
Roof Beam Plan
Roof Plan
Elevations plans
4 Cross Section plans
Lighting location Plan
You are purchasing the PDF file for this plan. Print it out whenever you like, as many times as you like.
Plan prints to A4 paper.
CUSTOM PLANS:
Unfortunately I’m unable to do custom plans at this time.
DISCLAIMER:
These plans were produced by myself and were not prepared by nor checked by a licensed architect and/or engineer.
I do not represent nor imply myself to be a licensed architect and/or licensed engineer.
Enjoy these plans but use them at your own discretion.
Delivery Instant Download
Your files will be available to download once payment is confirmed. Here’s how.
I don’t accept returns, exchanges, or cancellations. But please contact me if you have any problems with your order.
Your could Reach Us: Personal FB:Â Sophoat Toch
Facebook Page: Sam Architect
Facebook Group:Â Home Design Idea
More Plans Download On Youtube:Â House Plans Channel
If you think this Plan is useful for you. Please like and share.
YOU WILL RECIEVED THE DETAILING AS BELOW AFTER BUYING THIS PLAN

Other House plan:
Modern Farmhouse Designs 12Ă—8 Meters 40Ă—26 Feet
Luxury House Plans 12Ă—8 Meters 40Ă—26 Feet 3 Beds
5×7 Small House Plans Meters 2 Bedrooms
Best Small House Design Idea 4Ă—9 Meters 36sq.m
11×6 House Design Meters 36Ă—20 Feet Terrace Roof
Best Small House Designs 9×6 Meter 30×20 Feet
1 Story Modern House 12×12 Meters 40×40 Feet
Modern Small House Design 7×7 Meter 23×23 Feet
7×7 Small House Design Meter 23×23 Feet Gable Roof





























Reviews
There are no reviews yet.