Description
House Plans 14×11 Meter 46×36 Feet 3 Beds
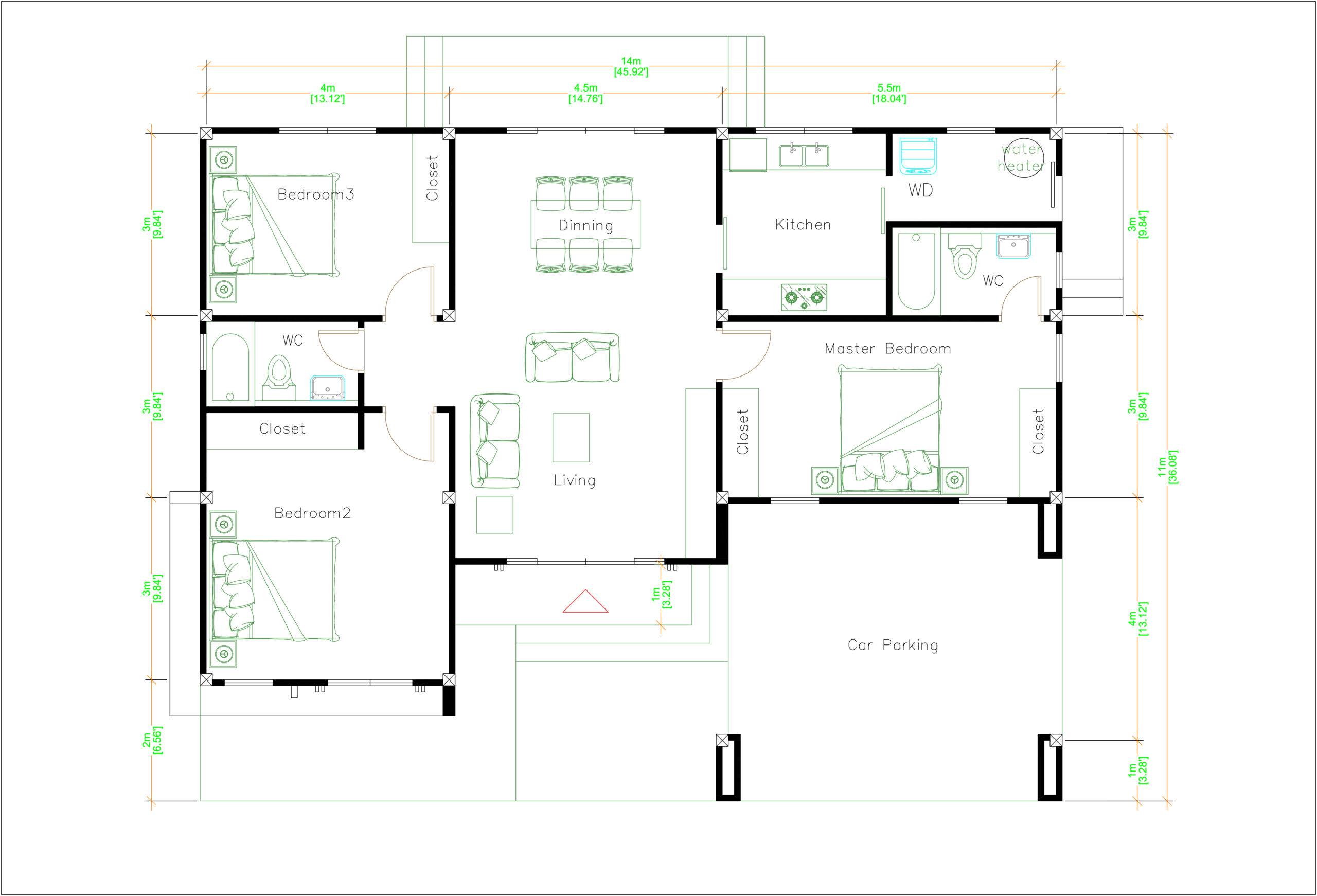
House Plans 14×11 Meter Ground Floor Plans Has:
Firstly, 2 car Parking is at the right side of the house 5.5×5.0 Meters. A nice Terrace entrance in front of the house size 1.0×4.5 meters. When we are going from front door, a small Living 4.0×4.5 Meter, kitchen 4.0×4.5 meter is very perfect for maximum 8 people for this house it is nice and can see through the back terrace by a big sliding door glass. Brightly Kitchen, it is clean and beautiful 2.8×3.0 meter. A multi Bathroom size 1.6 x 2.7 meters. The washing machine + storage size 1.5×2.7 meters. Finally, The most important of the house is an exit door from the Dining room to the back yard.
The Master Bedroom is design like a hotel bedroom, it have 3 glass window size is 3.0×5.5 meters with a queen size bed, Makeup desk and closet, bathroom size 1.6×2.7 meter. Bedroom 2 size 4.0×4.5 meter the rooms have closet. Bedroom 3 size 4.0×3.0 meter the rooms have closet.
The Roof Tile:
Finally, The Terrace roof type is made from Zine tile that cover above Gypsum board ceiling . It is make the house look simple and modern.
Exterior House Plans 14×11 Meter:
Similarly, to the roof border color we choose a bite dark and light color combination together with a big glass door and window to get the house look so beautiful and Modern house.
House Short Description:
-Car Parking and garden
-Living room,
-Dining room
-Kitchen
-3 Bedrooms, 2 bathrooms
-washing room
PLEASE MAKE SURE YOU HAVE CHECK the free sample plans
Check the Plans for more detail:
Buy this house plan: House Plans 14×11 Meter 46×36 Feet 3 Beds
-Layout Detailing floor plan, Elevation Plan with dimension.
-Sketchup file can used in Meter and Feet
-Autocad file (All Layout plan)
* Included files Autocad 2010 and Sketchup 2017
Your could Reach Us: Personal FB:Â Sophoat Toch
Facebook Page: Sam Architect
Facebook Group:Â Home Design Idea
More Plans Download On Youtube:Â House Plans Channel
If you think this Plan is useful for you. Please like and share.
Other House plan:
House Design 9×9 Meters 30×30 Feet Shed Roof
House Design Plans 13×9.5m Full Plan 2Beds
1 Story Modern House 12×12 Meters 40×40 Feet
3d House Drawing 13×7.5 Meter 43×25 Feet 3 Beds
One Level House Plans 12×12 Meters 40×40 Feet
Modern House Drawing 12×9 Meter 40×30 Feet































samhouseplans –
Thank for review this house plan
samhouseplans –
Thank you