Description
Tiny House Plans 4×9 Meters 2 Bedroom Terrace Roof 36sq.m (13×30 Feet)
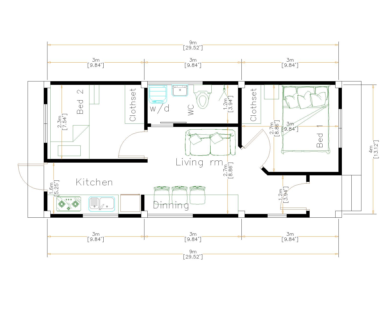
Tiny House Plans 4×9 Meters Ground Floor Plans Has:
Firstly, the Parking outside of the house. Terrace entrance is in front of the house 1.00 x 1.30 meters. When we are going through a glass door, a small Living with dinning area 2.70 x 3.00 meter is very perfect for this small house it is nice and modern. Dinning Table is supported 3 People in this family. A multi Bathroom size 1.20 x 3.00 meters, also include washing machine. Brightly Kitchen size is 1.60 x 3.00 meter, it is clean and beautiful. Finally, The most important of the house is an exit door from the kitchen to the back yard.
The Bedroom 1 size is 3.00 x 2.70 meters with a queen size bed and closet. Bedroom 2 is kid room 2.30 x 3.00 meters with bunk bed support two kid, also have closet.
The Roof Tile:
Finally, The Terrace roof type is made from concrete slap that cover above Gypsum board ceiling . It is make the house look simple and modern.

Exterior Tiny House Plans 4×9 Meters :
Similarly, to the roof border color we choose a bite dark and light color combination together with a big glass door and window to get the house look so beautiful and Modern house.

House Short Description:
-Car Parking and garden
-Living room,
-Dining room
-Kitchen
-2 Bedrooms, 1 bathroom
-washing room
PLEASE MAKE SURE YOU HAVE CHECK the free sample plans
Check the Plans for more detail:
Buy this house plan:
This is a PDF Plan available for Instant Download.
2-Bedrooms 1-Bath home with mini washer/dryer room.
Building size: 13 feet wide, 30 feet deep 4×9 Meters
Roof Type: Terrace roof (Concrete cement, zine, cement tile or other supported type)
Foundation: Concrete or other supported material
For the reverse plan, please see other Model.
PLANS INCLUDE:
Footing, Beam, Column Location plan
Exterior / Interior wall Dimension Plan
Roof Beam Plan
Roof Plan
Elevations plans
2 Cross Section plans
Ceiling Lighting location Plan
You are purchasing the PDF file for this plan. Print it out whenever you like, as many times as you like.
Plan prints to A4 paper.
CUSTOM PLANS:
Unfortunately I’m unable to do custom plans at this time.
DISCLAIMER:
These plans were produced by myself and were not prepared by nor checked by a licensed architect and/or engineer.
I do not represent nor imply myself to be a licensed architect and/or licensed engineer.
Enjoy these plans but use them at your own discretion.
Delivery Instant Download
Your files will be available to download once payment is confirmed. Here’s how.
I don’t accept returns, exchanges, or cancellations. But please contact me if you have any problems with your order.
Your could Reach Us: Personal FB:Â Sophoat Toch
Facebook Page: Sam Architect
Facebook Group:Â Home Design Idea
More Plans Download On Youtube:Â House Plans Channel
If you think this Plan is useful for you. Please like and share.
In link download -Ground floor, First floor, 3d photo -Sketchup file -Autocad file (Layout plan)
We give you all the files, so you can edited by your self or your Architect, Contractor.
















Other House plan
House Plans 14×11 Meter 46×36 Feet 3 Beds
Online House Design 12×9 Meter 40×30 Feet
One Storey Building 12×9 Meter 40×30 Feet
3d Floor Plan 12×9 Meter 40×30 Feet 2 Beds






















samhouseplans –
Thank you for buying this house plans.