Description
Lake House Plans 13×11 Meter 44×36 Feet
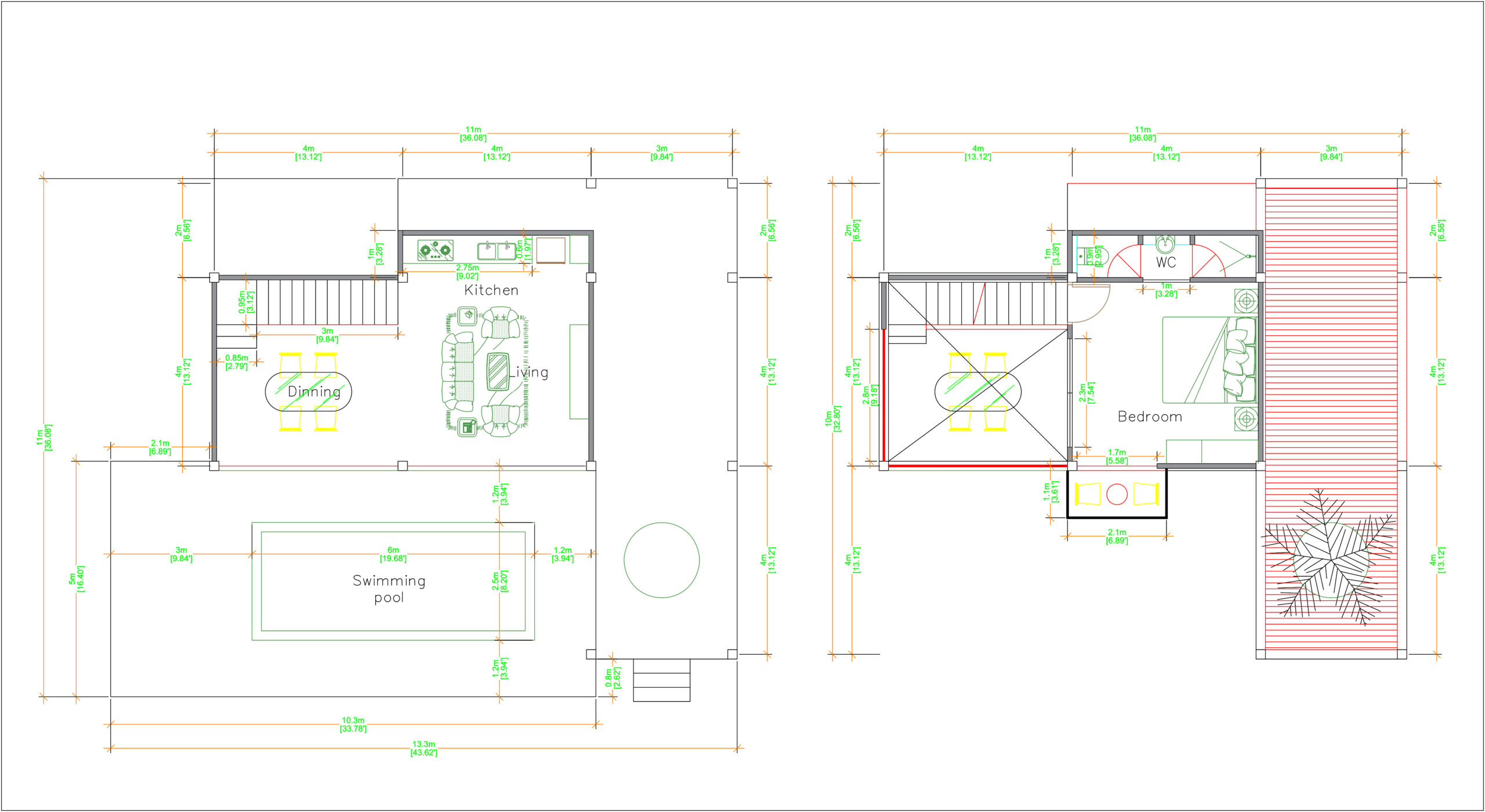
Lake House Plans 13×11 Ground Floor Plans Has:
Firstly, Parking is out side of the house. A nice Terrace entrance at the right side of the house it is covered wooden steel frame a long to the lake size 3.0×10.0 meters. In front of the front door is a swimming pool 2.5×6.0 meters, two big front door glass to get a nice view the pool and lake. a small Living 4.0×4.0 Meter, kitchen 1.0×4.0 meter is very perfect this house. Dining room and stair 4.0×4.0 meters.
The Master Bedroom 4.0×4.0 meters is design like a hotel bedroom, it have a big glass window size to see through to the dining table, with a King size bed, Makeup desk and closet, bathroom size 1.0×4.0 meter. Balcony 1.1×2.1 meters.
Please check the floor plan Below for more detail:
The Roof Tile:
Finally, The Shed roof type is made from Zine tile that cover above Gypsum board ceiling . It is make the house look simple and modern.

Exterior Lake House Plans 13×11 Meter:
Similarly, to the roof border color we choose a bite dark and light color combination together with a big glass door and window to get the house look so beautiful and Modern house.





House Short Description:
-Car Parking and garden
-Living room,
-Dining room
-Kitchen
-1 Bedroom, 1 bathroom
PLEASE MAKE SURE YOU HAVE CHECK the free sample plans
Check the Plans for more detail:
Buy this house plan: Lake House Plans 13×11 Meter 44×36 Feet
-Layout Detailing floor plan, Elevation Plan with dimension.
-Sketchup file can used in Meter and Feet
-Autocad file (All Layout plan)
* Included files Autocad 2010 and Sketchup 2017
Your could Reach Us: Personal FB:Â Sophoat Toch
Facebook Page: Sam Architect
Facebook Group:Â Home Design Idea
More Plans Download On Youtube:Â House Plans Channel
If you think this Plan is useful for you. Please like and share.







Other House plan:
House Design 9×9 Meters 30×30 Feet Shed Roof
House Design Plans 13×9.5m Full Plan 2Beds
1 Story Modern House 12×12 Meters 40×40 Feet
3d House Drawing 13×7.5 Meter 43×25 Feet 3 Beds
One Level House Plans 12×12 Meters 40×40 Feet
Modern House Drawing 12×9 Meter 40×30 Feet










samhouseplans –
Thank for Riewing this plans