Description
House Plans 9×11 Meter 30×36 Feet 4 Beds
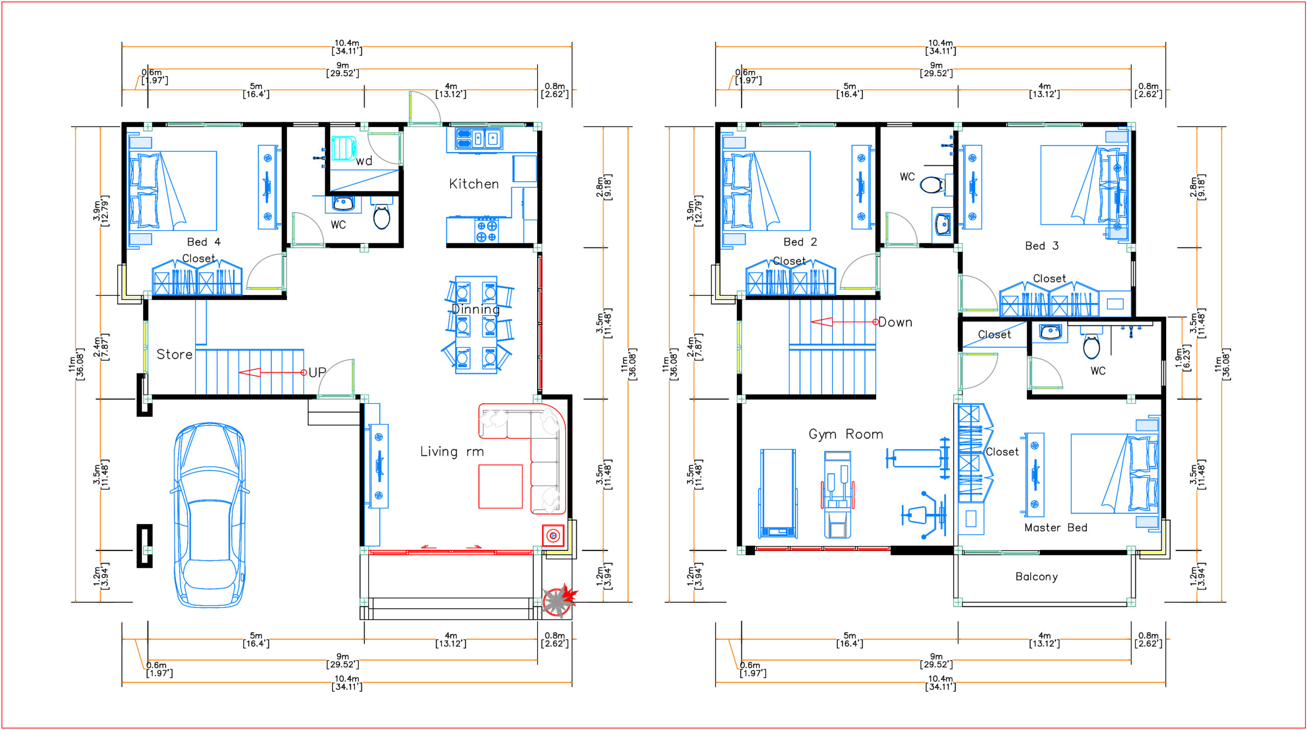
House Plans 9×11 Meter Ground Floor Plans Has:
Firstly, 2 cars Parking is at the Left side of the house. A nice Terrace entrance in front of the house. When we are going from front door is Living room 3.5×4.8 meter. Dining room 4.0×3.5 meter supported 8 People in the family. Brightly Kitchen 2.8×3.0 meter, it is clean and beautiful. Washing room 1.8×1.8 meter. A multi Bathroom size 1.2×3.0 meters. The storage is under the stair. Bedroom 4 size 3.9×3.5 meter.
At the first floor, Hall 2.0×3.5 meter. Gym room 5.0×3.5 meter. The Master Bedroom 4.8×3.5 meter attached bathroom 1.9×3 meter, closet, office and Balcony 1.2×4.0 meter. Bedroom 2 side 3.9×3.5 meter with closet. Bedroom 3 side 4.4×4.0 meter. Multiple bathroom 2.0×2.8 meter.
The Roof Tile:
Finally, The Hip roof type is made from Zine tile that cover above Gypsum board ceiling . It is make the house look simple and modern.


Exterior House Plans 9×11 Meter:
Similarly, to the roof border color we choose a bite dark and light color combination together with a big glass door and window to get the house look so beautiful and Modern house.





House Short Description:
-Car Parking and garden
-Living room,
-Dining room
-Kitchen
-4 Bedrooms, 3 bathrooms
-Storage under the stair
-Gym
-washing room
PLEASE MAKE SURE YOU HAVE CHECK the free sample plans
Check the Plans for more detail:
Buy this house plan: House Plans 9×11 Meter 30×36 Feet 4 Beds
-Layout Detailing floor plan, Elevation Plan with dimension.
-Sketchup file can used in Meter and Feet
-Autocad file (All Layout plan)
* Included files Autocad 2010 and Sketchup 2017
Your could Reach Us: Personal FB:Â Sophoat Toch
Facebook Page: Sam Architect
Facebook Group:Â Home Design Idea
More Plans Download On Youtube:Â House Plans Channel
If you think this Plan is useful for you. Please like and share.





Other House plan:
House Design 9×9 Meters 30×30 Feet Shed Roof
House Design Plans 13×9.5m Full Plan 2Beds
1 Story Modern House 12×12 Meters 40×40 Feet
3d House Drawing 13×7.5 Meter 43×25 Feet 3 Beds
One Level House Plans 12×12 Meters 40×40 Feet
Modern House Drawing 12×9 Meter 40×30 Feet
House Plans Design 12.4×11 Meter 41×35 Feet 4 Beds










samhouseplans –
Thank for review this house plan
YOUNG DOC (verified owner) –
I’ve purchased this beautiful plan but will be happy to have a 3d version of the inside