Description
Home Designs 5×10 Meter 17×33 Feet 2 Beds
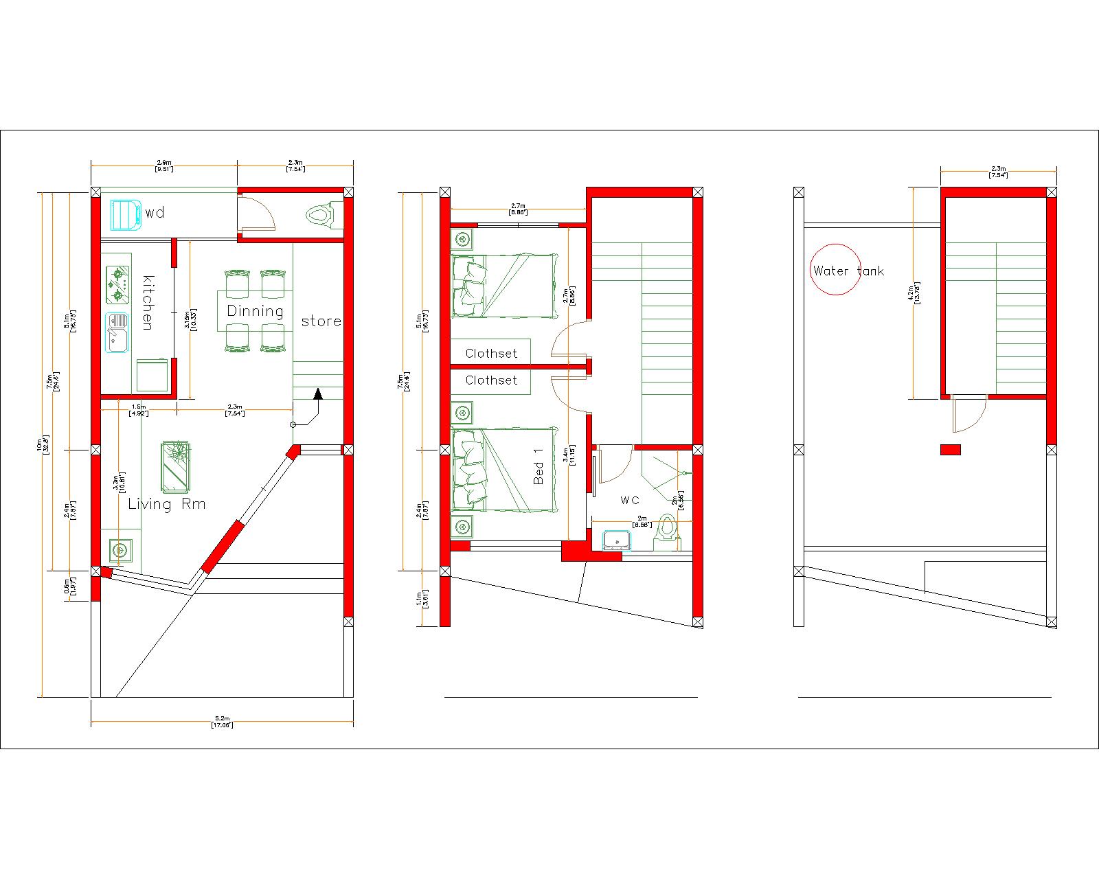
Home Designs 5×10 Meter Ground Floor Plans Has:
Firstly, Parking is out side of the house, parking is only available for Motorbike. A nice Terrace entrance in front of the house. When we are going from front door, a small Living 3.3×3.8 Meter, dining room very perfect for maximum 5 people for this house it is nice and can see through the back terrace by a big sliding door glass. Brightly separated Kitchen 1.5×3.2 meter, it is clean and beautiful. A multi Bathroom size 1.5x 2.3 meters. The washing machine and storage is under the stair. Finally, The most important of the house is an exit door from the Dining room to the back yard washing machine.
At the first floor, The Master Bedroom 2.7×3.4 meter, it have Big glass door go to big balcony. Makeup desk and closet, the room can be access to the multiple bathroom size 2.0×2.0 meter. Bedroom 2 size 2.7×2.7 meter the rooms have closet. The terrace water tank.
The Roof Tile:
Finally, The Terrace roof type is made from Zine tile that cover above Gypsum board ceiling . It is make the house look simple and modern.


Exterior Home Designs 5×10 Meter:
Similarly, to the roof border color we choose a bite dark and light color combination together with a big glass door and window to get the house look so beautiful and Modern house.




House Short Description:
-Car Parking and garden
-Living room,
-Dining room
-Kitchen
-2 Bedrooms, 3 bathrooms
-washing room
PLEASE MAKE SURE YOU HAVE CHECK the free sample plans
Check the Plans for more detail:
Buy this house plan: Home Designs 5×10 Meter 17×33 Feet 2 Beds
-Layout Detailing floor plan, Elevation Plan with dimension.
-Sketchup file can used in Meter and Feet
-Autocad file (All Layout plan)
* Included files Autocad 2010 and Sketchup 2017
Your could Reach Us: Personal FB:Â Sophoat Toch
Facebook Page: Sam Architect
Facebook Group:Â Home Design Idea
More Plans Download On Youtube:Â House Plans Channel
If you think this Plan is useful for you. Please like and share.












Other House plan:
House Design 9×9 Meters 30×30 Feet Shed Roof
House Design Plans 13×9.5m Full Plan 2Beds
1 Story Modern House 12×12 Meters 40×40 Feet





3d House Drawing 13×7.5 Meter 43×25 Feet 3 Beds
One Level House Plans 12×12 Meters 40×40 Feet
Modern House Drawing 12×9 Meter 40×30 Feet










samhouseplans –
Thank you for review this house plans.