Description
25×43 Free House Plans Download 7.5×13 Meter 4 Beds Full Plans. This house is perfect for family that need 4 bedrooms.
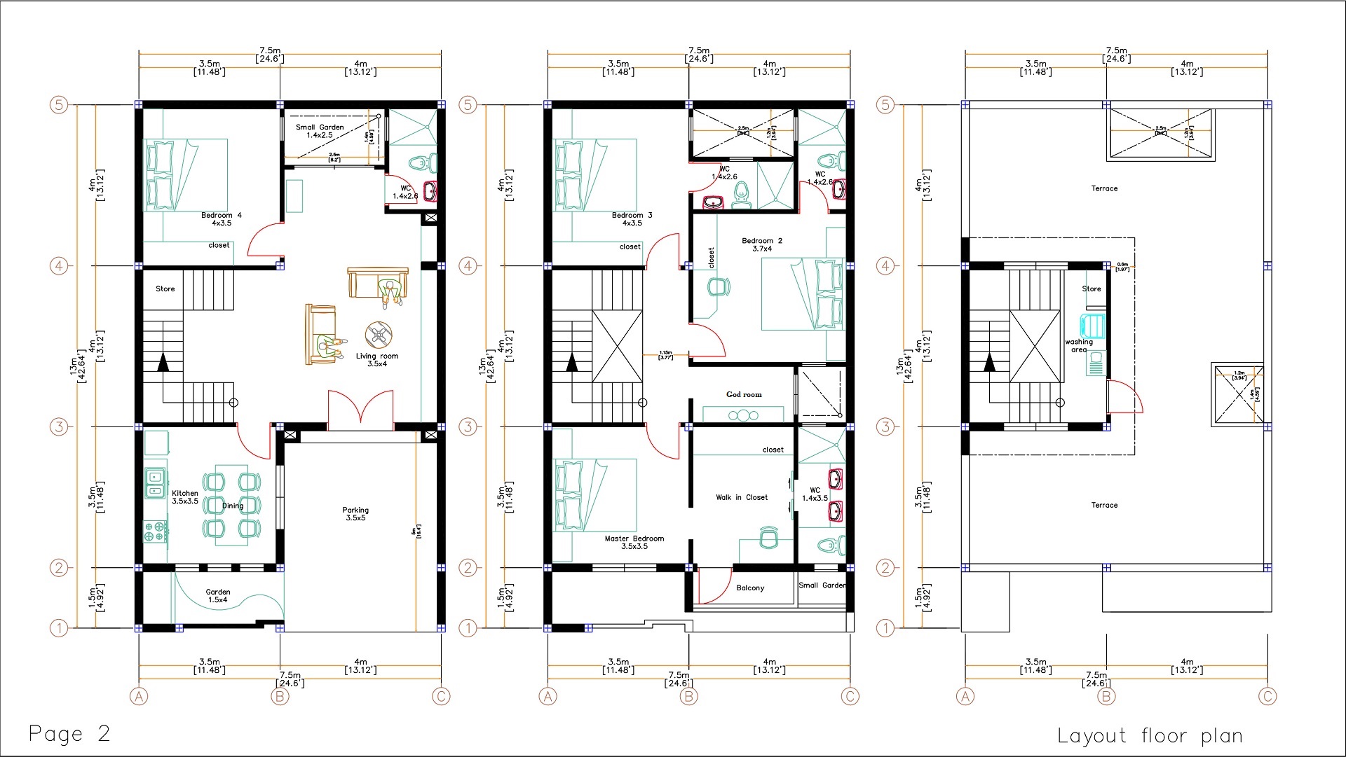
25×43 Free House Plans Download Floor Plans Has:
Hello and nice to meet you in small house design. Today I bring you a design review for a 1100 square foot 25×43 floor plan. A thousand square foot home in a dense suburban area across the street. This creates an interesting opportunity to design a pocket of greenery in a high-altitude perspective as a modern contemporary with balanced geometric phone use.
Exterior 25×43 Free House Plans Download:
The straight line of engineering lies in the startling contrasts in the neighborhood. But the more common answer to this 25×43 house design plan, the garage has green pockets around which the design looks open and porous. The ground floor uses the public spaces from the open-plan living and dining staircases and the open center green courtyard. The open house concept complements the light and quiet of the kitchen and the seat belt area in the backyard. while the front bedroom faces the front lawn It gives a simple yet intimate feel to nature to celebrate the beauty of the natural perfect world.
Adequate light and air in a home, bright colors and warm interiors often add playfulness and curiosity to a place. While family and friends are welcomed warmly on quiet evenings or on the nights where everyone lives. On the first floor there is a large common living room and two bedrooms adjacent to the bathroom. Using art helps a lot.
The Terrace Roof Tile:
The entire narrative and further supported by the overlapping color palette living spaces open onto a large green balcony that captures the essence of the surroundings. On the second floor there is a large gaming lounge with a balcony and a bedroom next to the bathroom. The design provides a quick but subtle touch of the house itself, a pause that mediates the interior and exterior.
The green veranda is arranged in a staggered manner. which is also on the lower terrace and covered with ivy. The objective is to create an earthy atmosphere with a balanced monkey ladder. Accessible to the mountain is a beautiful and peaceful skating rink. An environment with tree planters and a cozy atmosphere to enjoy the warmth of the space. Comment on the project and love to share and subscribe to fresh content.
House Short Description:
-One Car Parking and garden
-Living room,
-Dining room
-Kitchen
-4 Bedrooms, 4 bathrooms
-Small Storage under the stair
-washing
PLEASE MAKE SURE YOU HAVE CHECK the free sample plans
Exterior Design 3d:
Elevation Design 3d:
Interior Design 3d:
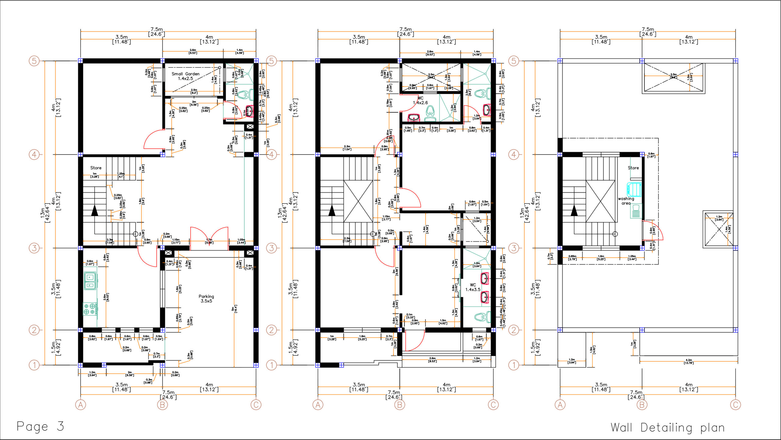
The PDF Layout Plans:
YOU WILL RECIEVED THE DETAILING AS BELOW AFTER BUYING THIS PLAN
Buy this 25×43 Free House Plans Download :
This is a PDF Plan available for Instant Download.
4-Bedrooms 4-Baths home.
Building size: 25 feet wide, 43 feet deep 7.5×13 Meters
Roof Type: Terrace roof (Concrete cement, zine, cement tile or other supported type)
Foundation: Concrete or other supported material
For the reverse plan, please see other Model.
PLANS INCLUDE 25×43 Free House Plans Download :
Footing, Beam, Column Location plan
Exterior / Interior wall Dimension Plan
Roof Beam Plan
Roof Plan
Elevations plans
Cross Section plans
You are purchasing the PDF file for this plan. Print it out whenever you like, as many times as you like.
Plan prints to A4 paper.
CUSTOM PLANS:
Unfortunately I’m unable to do custom plans at this time.
DISCLAIMER:
These plans were produced by myself and were not prepared by nor checked by a licensed architect and/or engineer.
I do not represent nor imply myself to be a licensed architect and/or licensed engineer.
Enjoy these plans but use them at your own direction.
Delivery Instant Download
Your files will be available to download once payment is confirmed. Here’s how.
I don’t accept returns, exchanges, or cancellations. But please contact me if you have any problems with your order.
Your could Reach Us: Personal FB:Â Sophoat Toch
Facebook Page: Sam Architect
Facebook Group:Â Home Design Idea
More Plans Download On Youtube:Â House Plans Channel
If you think this Plan is useful for you. Please like and share.

















Reviews
There are no reviews yet.